Джейкоб Золманн - Дизайн детства. Игрушки и материальная культура детства с 1700 года до наших дней стр 78.

Шрифт
Фон

Несмотря на свою миниатюрность, дом герметичен. Чтобы человека в доме со всех сторон окружало стекло, несущая способность этой современной конструкции должна быть такой же, как и у каменной стены. Ле Корбюзье, создавая дом «Дом-Ино» (1914) из тонких

Цит. по: Whyte I. B. The Crystal Chain Letter: Architectural Fantasies by Bruno Taut. Cambridge, MA: The MIT Press, 1985. P. 7.
Scheerbart P. The Gray Cloth: Paul Scheerbarts Novel on Glass Architecture / transl. by J. Stuart. Cambridge, MA: The MIT Press, 2001. P. 123.
Таут посвятил павильон Шеербарту, а Шеербарт посвятил Тауту «Стеклянную архитектуру». На выставке Веркбунда 1914 года была также представлена «Образцовая фабрика» Вальтера Гропиуса и Адольфа Майера еще один пример стеклянной архитектуры. Примеч. автора.
Scheerbart P. Glass Houses: Bruno Tauts Glass Palace at the Cologne Werkbund Exhibition // Glass! Love!! Perpetual Motion!!!: A Paul Scheerbart Reader / ed. by J. McElheny, C. Burgin. Chicago: University of Chicago Press, 2014. P. 97. Также см.: Elcott N. M. Kaleidoscopic-Architecture: Scheerbart, Taut, and the Glass House // Glass! Love!! Perpetual Motion!!! P. 112113; Ersoy U. To See Daydreams: The Glass Utopia of Paul Scheerbart and Bruno Taut // Imagining and Remaking the World: Reconsidering Architecture and Utopia. Oxford: Verlag, 2011. P. 130131.
Stuart J. Unweaving Narrative Fabric: Bruno Taut, Walter Benjamin, and Paul Scheerbarts The Gray Cloth // Journal of Architectural Education. 1999. No. 2 (53). P. 6768.
У Шеербарта было прозвище Стеклопапа. Примеч. автора.
Ersoy U. To See Daydreams. P. 118.
Whyte I. B. The Crystal Chain Letter. P. 5.

колонн и пластин из армированного бетона, придумал революционную систему, нацеленную на массовое производство. Применив эту систему в Доме-Калейдоскопе, архитекторы получили сооружение из шести вертикальных опор и напольных пластин из самого современного материала пластика. В результате того, что нагрузка на конструкцию была перенесена на колонны, дизайнеры получили возможность сделать в доме свободную планировку, открытый фасад и плоскую крышу. Все эти составляющие входят в «пять отправных точек архитектуры» по Ле Корбюзье. Уилрайт и Симмонс выдвинули колонны из углов основной жилой зоны, благодаря чему добились эффекта открытых карнизов. Геррит Ритвельд уже использовал технику визуально открытых карнизов в Доме Шрёдер (1924). Обозначить угол значит обозначить пространство внутри него: если оставить угол открытым, убрав из него несущую конструкцию, то «коробка», обозначающая пространство, разрушится. В результате, будь мы ростом около десяти сантиметров, мы ощущали бы эффект пространства, перетекающего изнутри наружу.

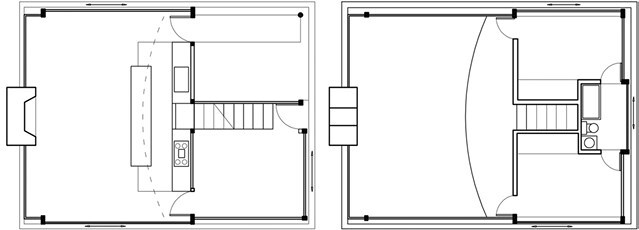
Ил. 9.3. Планировка Дома-Калейдоскопа. Слева: первый этаж с гостиной, столовой, кухней и кабинетом. Справа: верхний уровень с мезонином и спальнями

Каркас для цветных раздвижных панелей, создавая ритмические рисунки, пропорциональные связи и симметрии, выводит конструкцию на новый уровень структурной сложности. К примеру, если поднять входную панель, то на первом и третьем этаже каркас становится в ритмический рисунок ABA, а на втором этаже появляется другой рисунок, усиливающий главную ось центральной секции. На первом этаже эта ось проходит через вход, лестницу и кухню (прямо по холодильнику) и завершается камином в гостиной (ил. 9.3). Ось подчеркивает симметричное расположение спален на втором этаже, а на первом кабинета и гаража-террасы.

Кроме того, центральная ось обозначена вертикальным элементом красной трубой с небольшим отверстием. Это отверстие позволяет посмотреть наружу из мезонина на самом верху: взрослый человек может заглянуть туда только со стороны трубы. Благодаря тому, что дом представляет собой сложную замкнутую структуру с меняющимися цветами, все это производит целостное визуальное впечатление. Уилрайт и Симмонс создали не просто кукольный домик, а уменьшенную «модель» дома, способную воплотить в себе полномасштабные замыслы и идеалы стеклянной архитектуры.

Уилрайт, подобно Шеербарту, пишет романы: в 2012 году у него вышла книга «Как и на Земле». Он отмечает сходства между писательством и архитектурой: «Как мы приступаем к написанию истории? Как мы двигаемся по ней? Как она устроена?» Комнаты дома переплетены между собой в силу воображения зрителя, как главы книги соединяются благодаря воображению читателя. Конструируя нарратив Дома-Калейдоскопа, Уилрайт приглашает зрителя, ребенка или взрослого, расцветить пространство собственными историями. Как и на первых фотографиях Симмонс, здесь детская фантазия и взрослая искушенность сплелись между собой настолько тесно, что кажется неважным различие между большим и малым.

Именно об этой силе миниатюры говорит Башляр: «Моя власть над миром тем больше, чем искуснее я его уменьшаю Нужно выйти за пределы логики, переживая великое в малом» . Воображение способно бросить вызов нашему разуму, обладая миниатюрой и обживая ее. В этом сила и очарование Дома-Калейдоскопа.

В Доме-Калейдоскопе и вокруг него
Merkel J. Peter M. Wheelwright // Architectural Record 200. 2012. No. 10. P. 38.

Ваша оценка очень важна

0
Шрифт
Фон

Помогите Вашим друзьям узнать о библиотеке