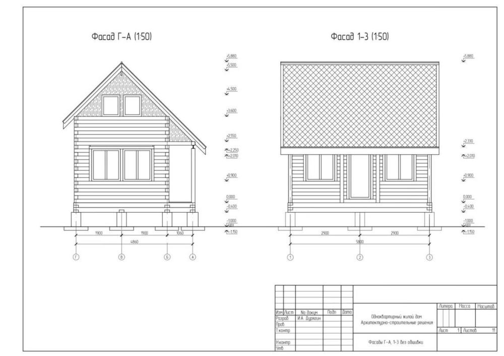
Иван Александрович Дурягин - Пособие по строительству дома стр 16.

Шрифт
Фон

Необходимо так же обратить внимание на то, что шаг между 1-ой и 2-ой досками обрешётки отличается от шага между остальными досками.

Между досками обрешётки соседних скатов, которые сходятся в вершине крыши, необходимо оставить зазор для выхода воздуха, вентилирующего подкровельное пространство (см. рисунок 4.7).




Рисунок 4.7 Зазор для выхода воздуха, вентилирующего подкровельное пространство




Рисунок 4.8 Соединение полотен мембраны на вершине крыши

4.4.3 Кровля

В качестве кровельного материала рекомендуется использовать металлочерепицу со следующими характеристиками:

 толщина металла: 0,5 мм;

 толщина защитного полимерного покрытия: 0,25 0,50 мм;

 содержание цинка: 275 г/м2.

Резка листов металлочерепицы (при необходимости) производится электрическими просечными ножницами по металлу, либо специальной насадкой на дрель для резки металлочерепицы типа «Grand Line Стальной бобёр», либо электролобзиком с лезвием по металлу.

К доскам обрешётки листы металлочерепицы крепятся кровельными саморезами с шайбой и уплотнительной прокладкой. В правильно закрученном саморезе прокладка сжата лишь слегка.

Саморезы вкручиваются в лист металлочерепицы в области, где он контактирует с обрешёткой. Эта область находится по центру между соседними гребнями волн. Саморез должен располагаться ниже ступеньки листа металлочерепицы на 1015 мм.

Монтаж листов металлочерепицы рекомендуется производить справа-налево. В этом случае очередной лист накладывается сверху на уже смонтированный.

Монтировать листы можно так же и слева-направо. В этом случае очередной лист подсовывается под уже смонтированный. Это довольно удобно, но существует вероятность повредить защитное полимерное покрытие во время подсовывания листа.

Оптимальное количество рядов листов металлочерепицы по высоте ската при данных габаритах скатов 2 ряда. При большем количестве рядов ошибки, которые были допущены при укладке листов каждого предыдущего ряда, будут увеличиваться при переходе к листам последующего ряда. Однако не рекомендуется использовать листы металлочерепицы длиной более 4 м. В противном случае повышается вероятность смятия листа во время выгрузки или укладки на скат.

По окончании укладки листов металлочерепицы монтируются доборные элементы кровли.

Сначала монтируется торцевая планка.

Для крепления торцевой планки на крайние стропильные ноги набиваются торцевые доски. Торцевая доска должна быть выше обрешетки на высоту профиля металлочерепицы. Минимальный нахлёст элементов торцевой планки 100 мм.

Допускается использовать карнизные и торцевые планки с толщиной металла меньше, чем у листов металлочерепицы, но не менее 0,40 мм. Особенности монтажа торцевой планки показаны на рисунке 4.9.




Рисунок 4.9 Монтаж торцевой планки


Перед монтажом планки конька в области перекрытия коньком листов металлочерепицы наклеивается уплотнитель конька. Коньковый уплотнитель должен иметь аэрационные отверстия для выхода воздуха, вентилирующего подкровельное пространство. Коньковая планка крепится к обрешётке. Саморезы вкручиваются в коньковую планку в местах расположения гребней волн листов металлочерепицы. Для крепления коньковой планки используются саморезы большей длины, чем для крепления листов металлочерепицы.

Толщину металла коньковой планки следует брать больше либо равной толщине металла листов металлочерепицы, но не менее 0,5 мм.

Листы металлочерепицы и все доборные элементы монтируются с лестницы для крыши. Можно устраивать отдельную лестницу для каждого ската; либо делать одну лестницу с которой обеспечивается доступ сразу на 2 ската; либо одну лестницу с доступом на 1 скат, но переносить её на другой скат по окончании работ на первом скате.

Утепление и обшивку стен, устройство полов, утепление крыши, внутреннюю отделку, прокладку инженерных коммуникаций и установку печи дровяного отопления необходимо производить по истечении года с момента окончания кровельных работ.
















































Ваша оценка очень важна

0
Шрифт
Фон

Помогите Вашим друзьям узнать о библиотеке

Скачать книгу

Если нет возможности читать онлайн, скачайте книгу файлом для электронной книжки и читайте офлайн.

fb2.zip txt txt.zip rtf.zip a4.pdf a6.pdf mobi.prc epub ios.epub fb3