Борис Колесников - Частное расследование аварии на СШГЭС. Происшедшей 17-го августа 2009 г.

Книгу можно купить на ЛитРес.
Всего за 440 руб. Купить полную версию
Шрифт
Фон

Частное расследование аварии на СШГЭС

Происшедшей 17-го августа 2009 г.


Борис Колесников

«Из всех средств массовой информации

для нас важнейшим является Интернет»

Народная мудрость

© Борис Колесников, 2019


1. Объект расследования- гидроагрегат 2 (ГА-2) Саяно-Шушенской ГЭС

1.1. Основные параметры гидростанции


Таблица 1


Год начала строительства- 1963.

Годы ввода первого (со сменным рабочим колесом) и последнего гидроагрегатов- 1978/1985.

Год официальной приёмки в эксплуатацию- 2000.


Рис. 1. Саяно-Шушенская ГЭС [1]


Рис. 2. Саяно-Шушенская ГЭС


1.1.1. Трёхмерный ролик по урокам аварии 17 августа 2009 года на Саяно-Шушенской ГЭС [2]


1.2. Основные параметры гидроагрегатов


1.2.1. Характеристики гидротурбины


Таблица 2


Особенностями конструкции гидротурбины являются:

выполнение рабочего колеса цельносварным на заводе, с доставкой на строительную площадку водным путем;

применение железобетонной конструкции спиральной камеры;

направляющий аппарат с индивидуальным гидравлическим сервоприводом каждой лопатки;

направляющий подшипник с обрезиненными сегментами на водяной смазке.

масса турбины (без статора и спиральной камеры)  656 т [3]


«В период освоения Саяно-Шушенской ГЭС произошло 64 нарушения работы гидротурбин и повреждения их узлов, в результате которых простой агрегатов составил 17614 час., недовыработка электроэнергии составила 6120 млн. кВт·ч. В подтверждение недостаточной изученности и продуманности конструкторских решений следует отметить, что непредвиденные остановки турбин происходили и тогда, когда они работали только на расчётных напорах» [4].


1.2.2. Характеристики гидрогенератора


Таблица 3


Особенностями конструкции гидрогенератора являются:

выполнение внутрипроводникового водяного охлаждения обмотки статора и форсированного воздушного охлаждения обмотки ротора;

двухрядный подпятник с эластичными металлопластмассовыми сегментами, размещенный в цельносварной масляной ванне диаметром 6 м; рассчитан на восприятие нагрузки 36000 кН;

подшипник генератора  баббитовый, с самоустанавливающимися сегментами;

общая масса генератора  1 860 т

1.2.3. Характерные зоны работы ГА-2 [5]


Рис. 3. Характерные зоны работы гидроагрегатов Саяно-Шушенской ГЭС


Особенностями режима работы гидроагрегата в зоне 2 являются:

повышенная вибрация и увеличение шума в машзале;

возрастание гула и грохота в отсасывающей трубе;

снижение к. п. д.


 Весовые характеристики базовых узлов и деталей ГА-2 [6]


Таблица 4


* Вес верхней крестовины принят ориентировочно

** Вес обода ротора определён также ориентировочно из расчёта ~ 60% от веса ротора.

«Полётный» вес ротора гидроагрегата (1687  550 +150) = 1287т


2. Аварийное разрушение ГА2 и его составных частей


Общая картина аварийного разрушения ГА2 и его составных частей показаны на рис. 4 и 5.


Рис. 4. Аварийное разрушение гидроагрегата 2

1-рабочее колесо турбины; 2- крышка турбины; 3- ванна подпятника; 4- спицы ротора генератора; 5- обод ротора генератора


Рис. 5. Схема аварийного разрушения составных частей гидроагрегата 2 [7]


Для выявления технических причин аварийного разрушения ГА2 рассмотрим последовательно, шаг за шагом, особенности конструкции и характера разрушений его базовых узлов и деталей.


3. Разрушение гидротурбины


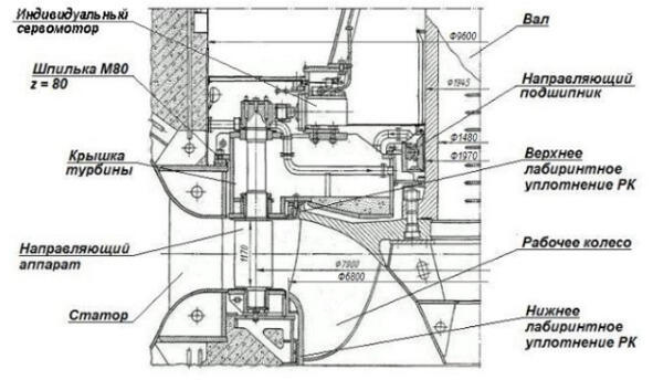
Общий вид гидротурбины в разрезе показан на рис. 6.


Рис.6. Радиально осевая гидротурбина СШГЭС


3.1. Разрушение направляющего подшипника и облицовки вала гидротурбины

Ваша оценка очень важна

0
Шрифт
Фон

Помогите Вашим друзьям узнать о библиотеке

Скачать книгу

Если нет возможности читать онлайн, скачайте книгу файлом для электронной книжки и читайте офлайн.

fb2.zip txt txt.zip rtf.zip a4.pdf a6.pdf mobi.prc epub ios.epub fb3