
Под холодную воду специально никаких емкостей, как правило, не изготавливают, приспосабливая молочные фляги, бочки или другую подобную посуду. В последние годы в бани возвращается деревянная утварь: шайки, бочки, кадушки, черпаки, изготовленные иногда фабричным способом, но чаще народными умельцами, в роду которых такое ремесло передается из поколения в поколение.
В металлических печах, работающих на электричестве, газе и других видах топлива, горячее водоснабжение организовано по-другому. Нагревается маленький объем воды на большой контактной площади теплообменника, которая силой конвекции поднимается наверх, заменяясь холодной порцией. Внешние накопительные баки таких систем могут находиться довольно далеко от котла, соединяясь с ним трубами и обеспечивая циркуляцию воды.
Такие баки уже не контактируют напрямую с печным жаром, они более долговечны. Поэтому их делают из тонкого металла, всячески украшают в соответствии с выбранным интерьером. Установка внешнего бака из нержавеющей или хромированной стали, кроме того, приносит в баню дополнительный свет, поскольку такая сталь обладает зеркальным эффектом. Использование же проточного водонагревателя вообще делает накопление горячей воды ненужным; остается лишь позаботиться о получении пара.
Камни для печи
Эффективность печи во многом зависит от правильного подбора загружаемых в нее камней. Основное требование к ним - чтобы они хорошо аккумулировали, а затем и отдавали тепло, выдерживали высокие температуры и не растрескивались от воды. Для этого камни должны быть плотными, однородными, равномерно нагреваться по всей массе и иметь во всех направлениях одинаковый коэффициент теплового расширения. Стоит отбирать гладкие и имеющие округлую форму камни.
Всем этим требованиям отвечают хорошо окатанные крупные тяжелые камни-булыжники, подвергшиеся за миллионы лет закалке солнцем и водой. Наиболее прочны камни из горных пород вулканического происхождения, например базальта гранита, андезита.
Если невозможно достать камни горных пород вулканического происхождения, можно воспользоваться камнями из кремнистых горных пород невулканического происхождения. Они отличаются твердостью, плотностью, темным цветом. Такие камни собирают на берегах рек, озер, заливов. Песчаник, известняк и другие осадочные породы для печей не подходят, так как быстро разрушаются, забивая каналы для пламени, дыма и пара.
Прочность камней и отсутствие трещин в них проверяют, ударяя молотком. Кроме того, пригодность определяют, раскаливая их докрасна и окуная в воду. Если камень при этом не треснул, его можно использовать в банной печи.
Диаметр камней должен быть 5–13 см. В нижней части контейнера на одну третью его объема укладывают более крупные диаметром 10–13 см, выше помещают средних размеров диаметром 7–9 см. Сверху насыпают мелкие диаметром 5–6 см. При укладке следует учитывать, что камни должны как можно меньше закрывать отверстия решетки между камерой сгорания и контейнером для них. Их заменяют через каждые 2–3 года.
Чтобы устранить все недостатки, присущие натуральному камню (пористость, острые края, недостаточная аккумуляция тепла, растрескивание, неоднородность, отсутствие гладкой поверхности), в последнее время широкое распространение получила технология изготовления искусственных камней для засыпки печей на основе керамики, керамических смесей и фарфора.
Полученный таким образом новый, не существующий в природе сплав позволил существенно улучшить характеристики материала для засыпки печи-каменки. Конечно, дополнительные затраты повышают его стоимость, но знатоки быстро смогут оценить его очевидные преимущества.
Большая, чем у горных пород, объемная теплопроводность и теплоемкость присуща чугуну и стали. Поэтому для ускорения нагрева и облегчения отдачи тепла при подаче воды на камни их укладывают вперемежку с чугунными или стальными болванками или чурками, которые следует располагать вертикально, чтобы они проводили тепло снизу вверх.
Печи-каменки на любой вкус
Вы познакомились с описаниями различных печей и пошаговыми рекомендациями по их строительству. Тем не менее, исходя из того, что печь - это самое главное и сложное сооружение в бане, лучше всего поручить кладку печи специалисту.
В этом разделе будет приведено несколько эскизов-проектов печей-каменок, из которых вы сможете выбрать подходящую для вас модель.
Простейшая металлическая печь-каменка
В этом проекте бак для нагрева воды не предусмотрен, так что его можно использовать в качестве печи для сауны (рис. 6.14).

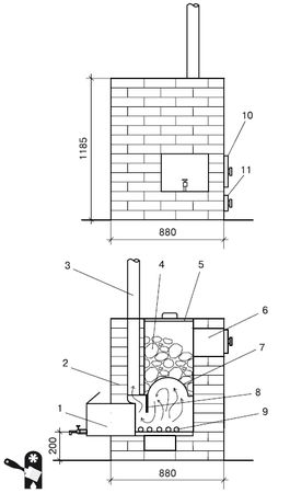
Кирпичная печь для бани с закрытой каменкой и боковым размещением бака для воды
Эта печь может использоваться для индивидуальной семейной бани больших размеров. Масса камней для печи подсчитывается исходя из того, что на 1 м парилки требуется 30–40 кг камней. Таким образом, для парилки объемом 8–10 м необходимо как минимум 250–300 кг камней.
В этой оригинальной печи свод выполняется из отрезка разрезанной вдоль металлической трубы диаметром 300–400 мм и длиной 500–600 мм. Водогрейный бак размещается сбоку (рис. 6.15).
К трубе, разрезанной вдоль, привариваются опорные стальные листы толщиной 5–6 мм, которыми отрезок трубы закладывается в кладку печи. Для герметичности свода торцы трубы также надлежит обварить металлическим листом с примыканием к ним кирпичной кладки.
Со стороны дымохода к трубчатому своду приваривается металлический лист - экран, который задерживает выход горячего воздуха в дымовую трубу.
В боковую стенку печи вмуровывают водогрейный бак размером 50:37:35 см, емкостью 40–45 л. Бак изготавливают из листовой стали толщиной 5–10 мм, сторону, примыкающую к топке, сваривают из листа толщиной 10 мм. С внутренней стороны боковой стены печи устанавливают металлический отрезок дымовой трубы, которая снабжена круглой заслонкой. Дымовая труба закрепляется в кирпичной кладке проволочными хомутами. Внизу она опирается своим обрезанным концом в металлический бак.
Верхняя часть печи представляет собой каменку, куда закладываются камни общей массой 150–200 кг. Каменка сверху закрывается крышкой из оцинкованной жести, которая снимается для выхода пара. Вода на камни подается через боковое отверстие размером 200:250 мм.

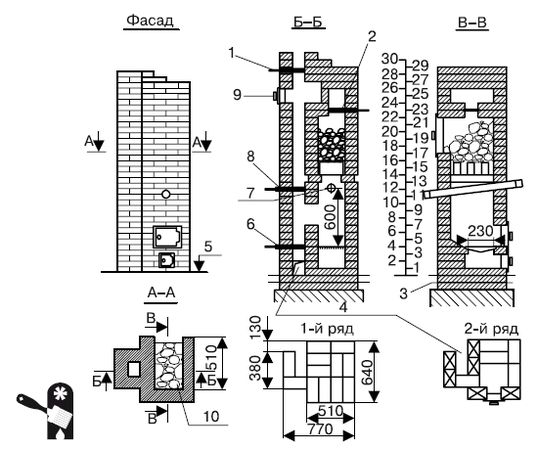
Малогабаритная кирпичная печь-каменка с системой подогрева воды для семейной бани на 2–3 человека
Размер печи в плане 510:640 мм, вертикального вентиляционно-дымового канала 380:260 мм, высота 2030 мм при средней толщине швов 5 мм (рис. 6.16–6.18).
Кладка вентиляционно-дымового канала ведется совместно с кладкой печи с перевязкой швов. Устье вентиляционного канала располагается на уровне пола моечного отделения или ниже его, если уровень пола в предбаннике ниже уровня пола в моечном отделении. Вентиляционный канал перекрывается задвижкой № 4.



Благодаря вертикальному вентиляционно-дымовому каналу есть возможность использования двух рабочих режимов и вентиляции моечного отделения.
Сперва открываются задвижки № 1 и № 3, дымовые газы с большим содержанием продуктов неполного сгорания уходят в дымовую трубу и далее в атмосферу. Горячий воздух заполняет камеру-каменку и прогревает камни, но циркуляции дымовых газов через камеру при закрытой задвижке № 2 не происходит.
Во втором режиме работы - при открытой задвижке № 2 и закрытой задвижке № 3 - раскаленные дымовые газы через отверстия в своде и слой камней будут проходить в тепловую камеру, а через нее - в дымовую трубу и далее в атмосферу.