Всего за 114.9 руб. Купить полную версию
Гараж
Гараж может быть построен из любого материала: дерева, железа или кирпича. Однако лучше всего взвесить все "за" и "против" перед постройкой подобного сооружения. Если построить деревянный гараж, то в этом случае на участке не будут соблюдаться нормы пожарной безопасности. В металлических гаражах создаются благоприятные условия для коррозии металла, что может привести к порче некоторых частей машины.
Целесообразнее строить гараж по схеме, представленной на рисунке (рис. 6).

Рис. 6. Кирпичный гараж: а – общий вид, фасад, б – вид сбоку, в – оптимальные размеры гаража.
Фундаментом для гаража служит основание, которое изготовлено из бетона, стены возведены из белого силикатного кирпича. Толщина стен – полкирпича. Шириной в кирпич возводятся угловые и промежуточные столбы. Крыша плоская, односкатная, обшивается досками толщиной до 50 мм. В конструкцию гаража входят две пары створчатых деревянных ворот, одна из которых обеспечивает въезд на прилегающую к гаражу площадку для мойки машин. Ширина гаража – 3,5 м, длина – 5,2 м. При таких размерах остается место для установки полок и стеллажей вдоль стен внутри гаража. Перед навешиванием ворот желательно поместить в нижней их части съемную доску, что создает возможность открывать ворота зимой при значительных снежных заносах. Для лучшего освещения при кладке в боковых стенах оставляют два оконных проема. Циркуляция воздуха обеспечивается вытяжной трубой диаметром 150 мм.
В сельской местности строят гаражи с двускатной крышей. В этом случае остается пространство для чердачного помещения, где можно хранить автозапчасти или прицеп. В целом под строительство гаража должна быть выделена площадь в 40 м.
В гараже также можно разместить погреб для хранения продуктов или домашнюю мастерскую. Для облегчения мойки машины в гараже целесообразно сделать водопроводный ввод с обязательным утеплением на зиму. Горючие и взрывчатые вещества лучше хранить в специальном металлическом шкафу. Рекомендуется установить здесь верстак с тисками для выполнения ремонтных и профилактических работ. Предметы больших размеров можно хранить на щите, подвешенном на перекладинах из брусков.
Некоторые гаражи на приусадебных участках имеют смотровую яму. Однако в практике ее наличие нежелательно, так как наличие испарений над ямой, появляющихся в результате перепада температур, часто ведет к коррозии днища машины. Тем не менее если уровень грунтовых вод не поднимается выше 2,5–3 м, то смотровая яма может быть предусмотрена при возведениии гаража.
Баня
Издавна баня считалась чуть ли не главным сооружением на крестьянском дворе. В течение всего советского периода реорганизации коммунального хозяйства баня перестала быть необходимым элементом, но в последнее время интерес к ней стал возрастать. В некоторых домах создаются не только русские бани, но и финские сауны. Этот интерес вполне оправдан. Известно, что баня – одно из первых средств для профилактики и лечения инфекционных простудных заболеваний.
Русская баня и финская сауна отличаются по температурному режиму и влажности. В русской бане температура воздуха составляет 40–45 °C при влажности 60–80 %, а в финской температура достигает 90° С при влажности всего 20–30 %. В финской бане устанавливают специальные теплоотражающие экраны, в результате создается эффект термоса. Изготавливают такие экраны из металлической гофрированной бумаги и располагают их рядом с печкой.
Общая площадь участка под строительство бани подсчитывается исходя из расчета 3–4 м на одного человека. При строительстве лучше использовать сухие сосновые или еловые бревна и брусья. В них содержится большое количество ароматических веществ, которые не только создают неповторимый запах, но и способствуют уничтожению бактерий. Материалом для бани может служить и красный кирпич, однако при резком перепаде температур пар конденсируется на стенках, и баня быстро остывает.
В бане лучше делать низкую притолоку и высокий порог. В этом случае пар и тепло удерживаются в помещении долгое время. Дверь изготавливают из досок толщиной 40–50 мм с таким расчетом, чтобы она плотно заходила в фальцы коробки. Порог делают высоким, примерно 20–25 см. Высота окон – 1 м, потолка – 2–2,3 м.
При строительстве бани особое внимание следить обратить на полы и водослив. В предбаннике, помещении, где раздеваются люди, полы делают из двух настилов, как это принято в жилых домах. Пол покрывают краской или линолеумом. Можно выложить его плиткой. Устройство полов непосредственно в бане сопряжено с некоторыми трудностями. В первую очередь необходимо обеспечить нормальный сток воды. Его сооружают из водоотталкивающего материала в сторону небольшой ямки, которая называется приямком. В приямке не должно быть никаких отверстий. На уровне 10–12 см от дна устанавливают водосливную трубу с наклонной пластиной, которая не пропускает запах из канализации.
Деревянное покрытие выполняют с применением гидроизоляции. Для обеспечения нормального водостока верхнюю часть досок делают гладкой и покатой. Для циркуляции воздуха в канализации помещают вентиляционный стояк, который можно сделать из металлической или асбоцементной трубы диаметром 100 мм. На верхнем конце устанавливают колпак или дефлектор. По окончании строительства баню обрабатывают антисептиком для предотвращения гниения.
В качестве отопительного средства в бане используют печи-каменки. Подобные печи состоят из гранитных камней и нагреваются от исходящего из топливника тепла. Для растопки обычно берут березовые дрова.
Чаще всего печи-каменки возводят из огнеупорного кирпича. Толщина стен может быть либо в полкирпича, либо в кирпич. На топливник уходит в среднем 150 кирпичей и по 20 кг песка и глины. Над топливником помещают котел, снабженный крышкой. Его соединяют газоотводными трубами с камерой каменки, наполненной гранитными камнями с добавлением чугунных чушек.
В камере должны быть две дверцы, через которые с помощью шлангов подают воду для образования пара. Печь размещают таким образом, чтобы обогревались все помещения бани. Фундамент бани выкладывают из бутобетона или бутового красного кирпича. Для кладки дымоходной трубы берут красный кирпич или сооружают ее из асбоцементной трубы диаметром 150 мм.
Конструкция каменки, изготовленной из двух металлических бочек, считается наиболее простой и удобной в применении (рис. 7). Одна из бочек идет под топливник, другая – под каменку. В топливнике делают небольшую дверцу и оборудуют его поддувалом и зольником. Сверху топливника помещают бак с краном. Каменку, оборудованную дымоотводом, устанавливают на ножки и соединяют с топливником.

Рис. 7. Металлическая печь-каменка.
Простейший вид бани на семью из трех человек представлен на рис. 8. Баня рассчитана на пользование в летнее время, так как в ней не предусмотрено место под предбанник. Общая площадь сооружения 5,1 м. В моечном помещении расположена каменка и полки для приема сидячих паровых ванн. В стене имеется отдушина для изменения температурного режима, которая плотно закрывается дверкой с ручкой. В планировке бани предусмотрено место под крыльцо для отдыха.

Рис. 8. Схема простейшей бани: 1 – каменка, 2 – полки, 3 – отдушина, 4 – кольцо, 5 – тепловой экран.
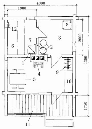
Если позволяют финансовые возможности владельца, то можно построить и баню более сложной конструкции (рис. 9). Такая баня состоит из четырех частей: предбанника, моечной, парильни и террасы. Предбанник, который может также являться и местом для отдыха, оборудуется камином. В моечной имеется бак с холодной и горячей водой и небольшое окно. Температурный режим данной моечной подходит для любителей умеренной бани. Парильня снабжена каменкой и тремя рядами полок, причем самая высокая температура создается на высоте 1,5–1,7 м. Нижняя и средняя полки соединяются перилами.

Рис. 9. Схема бани площадью 14,8 м: 1 – каменка, 2 – баки с холодной и горячей водой, 3 – моечная, 4 – камин, 5 – предбанник, 6 – полки, 7 – парильня, 8 – душевой поддон, 9 – вешалка, 10 – скамья, 11 – терраса, 12 – отдушина.
Летний душ
Помещение для летнего душа строят из деревянных щитов или плоского шифера и проводят электричество. Для воды на крышу сооружения устанавливают емкость объемом до 100 л, которую для предупреждения коррозии и более эффективного нагрева в течение дня покрывают черной краской или битумом. Нижнюю часть емкости оборудуют сливной трубой с краном (рис. 10).