Валерий Флеров - «Города» и «замки» Хазарского каганата. Археологическая реальность стр 5.

Книгу можно купить на ЛитРес.
Всего за 250 руб. Купить полную версию
Шрифт
Фон

В 2002 г. выходит ещё одна статья С.А. Плетнёвой по проблеме городов в Хазарии. В ней исследовательница начала отказываться от прямолинейных решений (Плетнёва С.А. 2002). Комментировать её из-за многих противоречий очень сложно. В ней можно усмотреть попытку, хотя очень непоследовательную, пересмотра прежних взглядов автора. Обращают на себя внимание нюансы. Так, статья снабжена подзаголовком «К постановке проблемы», хотя именно сама исследовательница, дважды подчеркнувшая свой приоритет, поставила проблему уже более сорока лет назад, а отнюдь не «впервые». Выделяя интересующие нас более всего степные памятники, собственно салтово-маяцкие, С.А. Плетнёва предлагает неустойчивые характеристики памятников, проявляя в них заметные колебания. Не случайно она допускает возражения своим выводам. Показательна фраза «…некоторые памятники, привычно считавшиеся в археологической науке городами, таковыми вряд ли являются» (Там же. С. 123). Но «привычно» можно было отнести только к немногим археологам, но не к археологической науке вообще.

Заметна неустойчивость и в терминологии. Такие определения, как «провинциальный пограничный городок», «небольшой городок» и аналогичные, не помогают решению проблем. Предваряя описание «поселений» Верхнесалтовского, Маяки, Малого Сидоровского, Ютановского, Маяцкого, С.А. Плетнёва определяет их как «города?», но в дальнейшем знак вопроса исчезает.

В качестве второго типа городов С.А. Плетнёва впервые выделяет степной. Собственно степные Саркел и Семикаракоры ею из разряда городов исключены, с чем, впрочем, я полностью согласен.

Автор по-прежнему полагает, что «степные города» Хазарии выросли из «ставок (стойбищ) богатейших аристократов». В этом её позиция неизменна, хотя археологически это не подтверждено ничем. В качестве примера исследовательница называет ненайденный Итиль, что, разумеется, доказательством служить никак не может. Доказательства надо искать не в теории, не в наших «соображениях», а в полевой практике. Прежде всего необходимо встретить соответствующую стратиграфическую ситуацию, минимум двухслойную. Но как отличить слой обычного поселения от слоя «стойбища кагана»? На современном уровне знаний салтово-маяцких поселений и хронологии керамики это практически невыполнимая задача.

* * *

Непосредственно систематизацией критериев «городов» Хазарского каганата никто серьёзно не занимался. Мне удалось найти лишь одну публикацию на эту тему: тезисы В.А. Катунина (Харьков). Несмотря на обещающее название, она разочаровывает (Катунин В.А. 2000. С. 187, 188). Автор предложил для выделения городов Хазарии просто использовать «разработанные A.B. Кузой для древнерусских городов» критерии. Такой перенос признаков памятников из одной культурной среды в иную принципиально неприемлем. Неудивительно, что автор вынужден из списка A.B. Кузы исключить монументальное зодчество и тип городской застройки. Катунин не остановился на Хазарии, но пошел далее, предлагая распространить систему A.B. Кузы на Волжскую Болгарию, Иран, Византию и даже Западную Европу. Как я попытаюсь показать в заключении очерка, самим хазароведам необходимо досконально изучать вековой опыт западной и восточной медиевистики по проблеме города.

В предлагаемом ниже обзоре рассматриваются городища, в основном с каменной и кирпичной фортификацией, бассейна Дона с его главным притоком Северским Донцом – территория, где культура Хазарского каганата, салтово-маяцкая, сложилась и в дальнейшем развивалась в чистом виде. Именно для этого региона и необходимо решать вопрос о «городах» Хазарии. Но привлечены и памятники соседних регионов, Крыма, Дагестана, Чечни, для которых чаще всего можно встретить определение «города Хазарии», что далеко не так.

* * *

Археология в рассмотрении поселений даёт большие преимущества в сравнении с письменными традициями. Предмет её изучения достаточно конкретен, источники практически неисчерпаемы. Следует учитывать и то, что на планы, фортификацию и постройки раскапываемых поселений проецируются конкретные предметы древнего обихода.

В подходе к хазарским «городам» особо выделю два признака. При этом под «хазарскими» подразумеваются исключительно памятники в бассейне Дона и, возможно, Итиль. Речь идёт о городищах, возведённых самим населением каганата, а не наследованных от предшествующих эпох.

1. Архитектурно-планировочный облик. При обращении к памятникам любой древней культуры его исключать невозможно. Он материально (до визуальности), археологически отличает город от села/деревни. В нём отражаются социальная структура городского населения, его состав и организация. Всё-таки облик поселения как города (не села!) определяли не жилища знати/ аристократов, не культовые строения, а тип и структура расположения жилищ горожан с их образом жизни и занятиями. Даже при наличии письменных источников только археология во всей полноте даёт представление о плане и архитектуре древнего города. Город без рядового городского населения – это нонсенс. Не буду развивать эту многократно обсуждавшуюся тему. За нею встаёт не менее сложный вопрос о функции того или иного поселения, которому присваивается название «город», о городах-крепостях и т. д. Здесь теория города должна неразрывно сочетаться с конкретикой исследуемых поселений и общества, к которым они принадлежали.

2. Структура. Как ни странно, признак не однозначен. Нет ясности, что включать в состав «города», только ли городища или вместе с ними и прилегающие открытые поселения. Появляется большой соблазн начать некоторые игры с термином «посад».

Ниже я коснусь лишь некоторых археологических памятников исключительно с целью показать состояние проблемы «существовали ли в Хазарии города?». Будут упоминаться преимущественно те же археологические памятники, что и в статье С.А. Плетнёвой (2002). Все они известны по многим публикациям. Поэтому я предельно ограничу ссылки на издания. Это преимущественно памятники с кирпичной или каменной фортификацией. Обращение к некоторым городищам с валами (Сидоровское, Андрей-аул, Маяки) спровоцировано другими авторами, представляющими их остатками городов.

Бассейн Дона – Северского Донца

Саркел-Белая Вежа

М.И. Артамонов о Саркеле

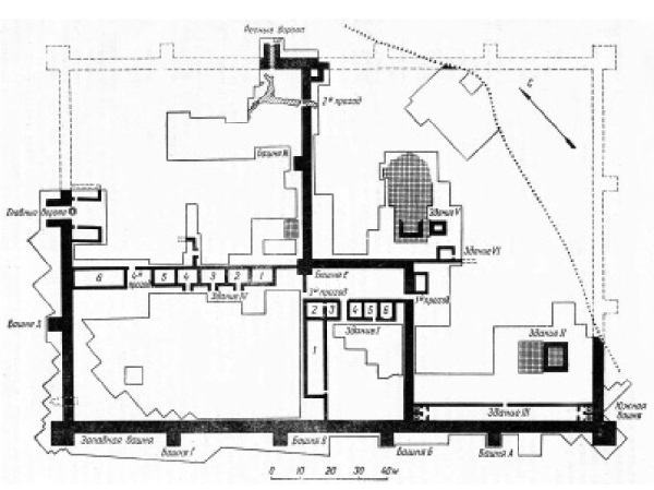
С.А. Плетнёва пишет, что в 30-е гг. М.И. Артамонов «утверждал», среди прочего, что «в первой половине X в. Саркел был уже городом, о чём свидетельствуют остатки ремесленных мастерских» (Плетнёва С.А. 1996. С. 6). М.И. Артамонов не только не «утверждал» этого, но и никогда не занимался теоретическим вопросом, является ли Саркел городом (Рис. 1, 2). В археологических разделах своих трудов М.И. Артамонов избегал поверхностного теоретизирования, предпочитая анализировать непосредственно источники. Только в связи с сообщением Константина Багрянородного он дважды употребил термин «город». Типичное выражение М.И. Артамонова – «городище», не только для Саркела, но и для Правобережного Цимлянского, Потайновского и других. Характерные же для Саркела – «кирпичная крепость» или «крепость» (Артамонов М.И. 1935. С. 81–85 и сл.). Гораздо более показательна итоговая статья М.И. Артамонова, в которой Саркел недвусмысленно назван крепостью (Артамонов М.И., 1958. С. и, 48).

Илл 1. Саркел. Общий план крепости

Илл. 2. Раскопки Саркела. Аэрофотоснимок, 1951 г.


Уровень развития ремесла в Саркеле ничем не отличался от общего для каганата. М.И. Артамонов упоминает несколько гончарных печей и косторезное дело. Что касается мастерских, на которые ссылается С.А. Плетнёва, то известна одна (!): «Несомненных следов металлургического производства в хазарском слое Саркела не найдено, за исключением одной кузницы…» (Артамонов М.И. 1958. С. 39~43)-

Ваша оценка очень важна

0
Шрифт
Фон

Помогите Вашим друзьям узнать о библиотеке

Скачать книгу

Если нет возможности читать онлайн, скачайте книгу файлом для электронной книжки и читайте офлайн.

fb2.zip txt txt.zip rtf.zip a4.pdf a6.pdf mobi.prc epub ios.epub fb3