Коновалова Нина Анатольевна - Современная архитектура Японии. Традиции восприятия пространства стр 20.

Шрифт
Фон
КОНЕЦ ОЗНАКОМИТЕЛЬНОГО ОТРЫВКА

К. Курокава. «Капсульный дом К» (1974 г.). План


Весьма интересным с точки зрения организации пространства стал дом, созданный уже в наши дни, названный «Дом Сора-нокатати»  См. вкл.: илл.8, 9. Он был выстроен в Канагаве и спроектирован для своей семьи архитектором К. Кисимото. Его жилая площадь составляет всего 41,6 м2. Автор задумывал свой дом как гармоничное единство современного и традиционного. Название, данное сооружению, можно перевести с японского как «форма неба». Подобная лирика вполне оправдана, вид на небо открывается из каждого помещения постройки.

Весьма ярко и необычно продуманы деление пространства и многочисленные пути движения по нему, предусмотренные архитектором. Автором создана уникальная комбинация проходов по дому, т. к. несколько входов и выходов есть у любого его пространства и даже в таком небольшом доме их достаточно большое количество. Предусмотрены также постоянные изменения направления при передвижении по комнатам. Такая режиссура движения полностью соответствует смыслу традиционных японских построек, при обходе которых постоянно открываются новые виды, меняются перспективы.

Масштаб помещений изменяется в соответствии с их предназначением: из просторной гостиной в более скромные по размерам жилые комнаты выводит узкий коридор с очень низким потолком. В доме запроектировано семь различных уровней полов, но они сделаны архитектором так мастерски, что чувствуется абсолютная естественность и органичность перетекающего пространства. Двухуровневая гостиная воспринимается единым неразрывным помещением, которое при необходимости может вместить в себя большую компанию. Ее вертикальное разделение не воспринимается как разобщенность пространства и не помешает течению общей беседы. Гостиная  сердце этого дома, где все создано для комфорта: проникающий через большие окна свет играет на контрасте черных и белых стен, чем достигается эффект умиротворения. При желании можно опустить жалюзи и отгородиться от всего остального мира.

Расположенный внутри постройки сад делит дом на крылья, которые на всех уровнях связываются внешними верандами (их присутствие  также традиционная особенность японских построек)  См. вкл.: илл.10. Кроме того, хозяином-архитектором продумано обособление частной жизни своих домочадцев. Право на личное пространство и невмешательство в образ жизни других утверждается и регулируется. Дом устроен так, чтобы спальня родителей была в конце одного маршрута, а детская  в конце другого: так, оставаясь фактически рядом, они отделяются и отдаляются психологически.

За последние годы в Японии построено несколько неповторимых и очень интересных частных домов совершенно миниатюрных размеров. В каждом проекте маленького дома архитектор пытается найти своеобразный противовес миниатюрному жилому пространству. Для этого все элементы постройки включаются в игру, максимально выявляющую преимущества микродома и направленную на создание оригинального и индивидуального жилища. Чрезвычайно интересно направление наделения создаваемых индивидуальных жилых домов уникальной способностью к изменению. Даже для семьи, живущей в доме всю свою жизнь, он должен постоянно оставаться удобным и комфортным. Другими словами, дом должен позволить людям меняться и сам должен меняться вместе с ними. Этому условию, выводящему на новый уровень качество жизни в переуплотненном мегаполисе, оказывается, не так сложно соответствовать. При проектировании «Дома в форме клина» (арх. М. Эндо, Токио  См. вкл.: илл.11, 12) было создано два типа пространства: то, которое будет со временем видоизменяться или выполнять другие функции, и постоянное, которое должно выполнять свое предназначение в течение всего срока жизни дома.


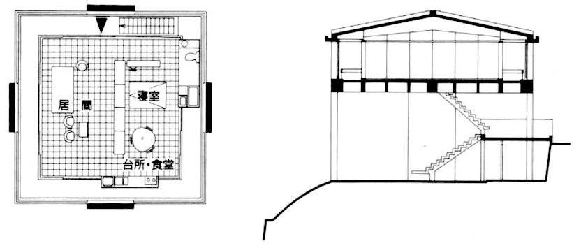
К. Кикутакэ. «Дом одной комнаты» (1958 г.)


К. Кикутакэ. «Дом одной комнаты». План и разрез


Столовая, кухня, ванная комната запланированы как полностью удовлетворяющие образу жизни хозяев и не подлежащие изменению. Однако было предусмотрено несколько видов дополнительного пространства, которое выполняло бы функции резерва в расчете на будущее развитие. На первом этаже располагается большая студия-мастерская, которая может быть переоборудована для использования под другие цели или разделена на несколько помещений. Поднявшись по лестнице на самый верх, можно попасть в запасную комнату наподобие чердака. В настоящее время она служит местом уединения и отдыха, но в планах подразумевается как гостевая или детская.

КОНЕЦ ОЗНАКОМИТЕЛЬНОГО ОТРЫВКА

К. Кикутакэ. «Дом одной комнаты» (1958 г.)


К. Кикутакэ. «Дом одной комнаты». План и разрез


Столовая, кухня, ванная комната запланированы как полностью удовлетворяющие образу жизни хозяев и не подлежащие изменению. Однако было предусмотрено несколько видов дополнительного пространства, которое выполняло бы функции резерва в расчете на будущее развитие. На первом этаже располагается большая студия-мастерская, которая может быть переоборудована для использования под другие цели или разделена на несколько помещений. Поднявшись по лестнице на самый верх, можно попасть в запасную комнату наподобие чердака. В настоящее время она служит местом уединения и отдыха, но в планах подразумевается как гостевая или детская.

Ваша оценка очень важна

0
Шрифт
Фон

Помогите Вашим друзьям узнать о библиотеке

Скачать книгу

Если нет возможности читать онлайн, скачайте книгу файлом для электронной книжки и читайте офлайн.

fb2.zip txt txt.zip rtf.zip a4.pdf a6.pdf mobi.prc epub ios.epub fb3