Коновалова Нина Анатольевна - Современная архитектура Японии. Традиции восприятия пространства стр 15.

Шрифт
Фон

Интерьер небольшого культового сооружения состоит исключительно из пространства, света и полутени. Андо сумел предъявить духовную силу света, используя для всей постройки только необработанный бетон. В церкви, кроме скромной лампы перед кафедрой проповедника и трех скромных светильников на стене, нет других источников искусственного освещения. Интерьер освещает только дневной свет, проникающий через разрезы в Стене Святости, сделанные в форме креста. Рассеянный свет, заполняя пустой интерьер, создает приглушенную атмосферу тишины и спокойствия. Благодаря архитектурному решению церкви, в ее пределах формируется «крест света», необходимый для полноценного восприятия сооружения целиком.

КОНЕЦ ОЗНАКОМИТЕЛЬНОГО ОТРЫВКА

Интерьер небольшого культового сооружения состоит исключительно из пространства, света и полутени. Андо сумел предъявить духовную силу света, используя для всей постройки только необработанный бетон. В церкви, кроме скромной лампы перед кафедрой проповедника и трех скромных светильников на стене, нет других источников искусственного освещения. Интерьер освещает только дневной свет, проникающий через разрезы в Стене Святости, сделанные в форме креста. Рассеянный свет, заполняя пустой интерьер, создает приглушенную атмосферу тишины и спокойствия. Благодаря архитектурному решению церкви, в ее пределах формируется «крест света», необходимый для полноценного восприятия сооружения целиком.

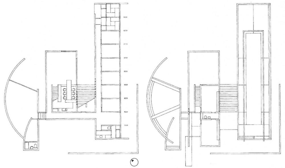
Чрезвычайно интересно организовано пространство частной виллы Косино (Koshino House, 1981 г., преф. Хёго) состоит из двух объемов, частично скрытых в наклонной холмистой местности. Такое положение здания, «спрятанное» в рельефе, продиктовано и необходимостью защиты от природных катаклизмов. Полностью соответствуя своими разноуровневыми помещениями сложному ландшафту, сооружение прекрасно вписано в окружающую природу, располагаясь среди затеняющих его елей, густые кроны которых препятствуют проникновению прямых солнечных лучей, пропуская лишь солнечные блики.


Т. Андо. Церковь Света. Фрагмент интерьера


Т.Андо. Вилла Косино (1981 г.)


Два блока помещений виллы, поставленные параллельно друг другу, соединяются подземным переходом и имеют внутренний двор, соответствующий наклонным контурам участка. Устройство внутреннего двора символически передает организацию природного мира. Во внутренний двор выходит большая гостиная с широкой открытой лестницей, которые и рассматриваются архитектором как главные объекты, призванные воспринимать игру светотени.


Т.Андо. Вилла Косино. Поэтажные планы


Т.Андо. Вилла Косино. Фрагмент интерьера


Используя для постройки необработанный бетон, Андо «оживляет» фактуру материала с помощью светового воздействия. Для попадания внутрь солнечного света предусмотрены разной длины проемы, в которых лучи солнца образуют свои причудливые узоры. Так материальный объект  неподвижная бетонная форма  дополняется световыми вариациями и получает способность «изменяться», воздействуя на эмоции и чувства посетителей. Можно сказать, что свет является посредником между пространством и формой, раскрывая их потенциал в динамике, что намного превосходит их статичные возможности.


Т. Андо. Детский музей (1989 г.)


Архитектура, по мнению Тадао Андо, не может быть автономна. Она не существует сама по себе, а всегда формируется путем диалога с природой. В каждом своем произведении архитектор виртуозно создает этот диалог. В то же время он считает, что отсутствие противостояния архитектуры и природы, которое было характерно для традиционной культуры Японии, давно осталось в прошлом. Он убежден, что в современной жизни должно присутствовать и сохраняться их противостояние, создавая определенную напряженность, необходимую для их органичного сосуществования, и, что не менее важно, для адекватного восприятия и оценки архитектуры. Андо не просто демонстрирует гармоничное единение архитектуры и природы, но и показывает возможности их взаимного раскрытия и обогащения. Ярким примером постройки, раскрывающей свой потенциал в диалоге с природой, является Детский музей (Children's Museum, 1989), расположенный в префектуре Хёго. Перед входом в музей посетителя ожидает обязательная длинная прогулка вдоль бетонной стены для того, чтобы сосредоточить его внимание на окружающем пейзаже. Дорога к музею ведет вверх по крутому ландшафту, где гладкие площади чередуются с маршами ступенек. Эта дорога символически и функционально отсылает нас к выложенной каменными плитами дорожке в традиционном японском саду. Главное предназначение извилистой дорожки заключается в концентрации внимания посетителей на определенных картинах пейзажа. Так и музейное здание получило определенные правила для входа, вторя наследию своей культуры и заимствуя у нее четко отлаженный механизм воздействия архитектуры на сознание и настроение человека.

Андо «оживляет» сооружения с помощью раскрытия новых граней «триады» пространственного понимания. Руководствуясь традициями своей страны, архитектор не просто демонстрирует гармоничное сосуществование архитектуры и природы, их непротиворечивость, но и предъявляет их взаимное раскрытие и обогащение. Смысловая «триада» воспринимается архитектором с позиции главенства тени, которая вбирает в себя остальные пространственные категории. Именно через свет открывается возможность показать пустоту, незаполненность пространства, через игру светотени подчеркнуть промежуточную зону. В результате постройки Андо наиболее любопытно рассматривать именно через призму «свет  тень».

Ваша оценка очень важна

0
Шрифт
Фон

Помогите Вашим друзьям узнать о библиотеке

Скачать книгу

Если нет возможности читать онлайн, скачайте книгу файлом для электронной книжки и читайте офлайн.

fb2.zip txt txt.zip rtf.zip a4.pdf a6.pdf mobi.prc epub ios.epub fb3