Максим Сергеевич Жмакин - Перепланировка и ремонт стр 6.

Книгу можно купить на ЛитРес.
Всего за 154.9 руб. Купить полную версию
Шрифт
Фон

Главной составной частью пространственной организации квартиры является помещение, в которое входят функциональные зоны, предназначенные для бытовых процессов, а также коммуникационные площади. Систему помещений жилища в большинстве случаев создают, базируясь на группах зон бытовых процессов. К примеру, группа зон гигиены является основой для помещений санитарного узла.

Помещения должны быть спланированы таким образом, чтобы в них можно было размещать функциональные зоны по-разному. Параметры каждого из помещений квартиры, т. е. площадь, конфигурация и некоторые другие, должны быть выбраны на основе планируемого количества функциональных зон. Общее же количество помещений в доме прямо пропорционально комфортабельности жилища и уровню дифференциации зон.

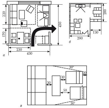
Общая комната является основной комнатой квартиры. Она предназначена для общесемейного пользования и служит в первую очередь для активного отдыха, например общения в семье, приема гостей, а также для занятий разного рода любительской и профессиональной деятельностью. В жилище экономкласса она же будет служить гостиной, столовой, комнатой для занятий и т. д. В квартире повышенной комфортности следует оборудовать сразу несколько общих комнат гостиную, столовую, кабинет, семейную комнату (рис. 2).


Рис. 2. Функционально-планировочная организация общей жилой комнаты: а) примеры планировочной организации; б) общие комнаты сложной формы; в) зона просмотра телевизора


Общая комната должна иметь площадь не менее 12 м2. В комфортабельном жилище ее площадь должна быть в пределах от 16 до 30 м2. На определенном этапе увеличение площади общей комнаты не повышает комфортность проживания в квартире. В этом случае желательно сделать три помещения для времяпрепровождения всей семьи гостиную, столовую и семейную комнату, предназначенную для отдыха.

Как правило, общая комната имеет квадратную форму (соотношение длины сторон 1 : 1), а иногда ее делают прямоугольной (стороны относятся друг к другу как 1 : 1,5). Квадратная комната практически по всем показателям является гораздо предпочтительнее прямоугольной. Однако у прямоугольной комнаты периметр является несколько большим, поэтому обставлять ее мебелью будет гораздо удобнее. К примеру, для оборудования столовой больше подойдет прямоугольная комната, так как она визуально будет казаться больше за счет длинных стен и в ней можно разместить значительно большее количество оборудования по сравнению с квадратной.

Исходя из своих основных функций общая комната должна находиться в центральной части жилища, так как она будет содержать в себе следующие функциональные зоны зону принятия пищи, зону проведения свободного времени, зону отдыха и др.

Столовая по своему местоположению должна быть неподалеку от кухни. Общая же комната требует естественного освещения, поэтому ее лучше оборудовать в юго-восточной части квартиры, также желательно размещать ее в угловой части квартиры, чтобы окна выходили на разные стороны.

Несмотря на то что в общей комнате должны осуществляться самые разные процессы жизнедеятельности, ее загруженность мебелью должна быть не очень высокой. Она должна быть или, по крайней мере, казаться наиболее просторной среди всех остальных комнат. Мебель в ней должна занимать не более 35 % от общей площади, в то время как в других помещениях на нее может приходиться от 45 до 50 % общей площади.

Сложный план у общей комнаты возникает в том случае, если она стала результатом объединения прямоугольной или квадратной части помещения, к которой присоединена дополнительная часть в форме прямоугольника или квадрата альков. В теории строительства выделяют три разновидности альковов спальный, для отдыха и работы.

Подобные комнаты имеют достаточно выразительный внешний вид и являются удобными для использования.

В личных жилых комнатах осуществляется пассивная форма отдыха как взрослых, так и детей. Обычно спальни создают для 12 человек и для семейной пары.

Главные функции данной зоны уединение и индивидуальное использование жилого пространства квартиры. Именно поэтому основным требованием в процессе проектирования спален является изоляция (рис. 3).


Рис. 3. Функционально-планировочная организация комнат общего пользования: а) пример планировочной организации личных помещений на 1 человека; б) встроенные шкафы; в) гардероб; г) функциональная зона сна

Ваша оценка очень важна

0
Шрифт
Фон

Помогите Вашим друзьям узнать о библиотеке

Скачать книгу

Если нет возможности читать онлайн, скачайте книгу файлом для электронной книжки и читайте офлайн.

fb2.zip txt txt.zip rtf.zip a4.pdf a6.pdf mobi.prc epub ios.epub fb3