Lim Word - Geschichte Gesamt. Praktischer Leitfaden für die Esser der Zeit стр 29.

Шрифт
Фон

Um die hohen weißen Steinmauern zu stürmen, wagt sich die Miliz nicht, schafft ihren Zemsky Sobor und das System der Staatsmacht. Doch zwischen den beiden Kräften  dem Adel, Staatlichkeit und Hörigkeit wiederherzustellen suchen, und die Kosaken, die ihre Freiheiten erhalten will, gibt es eine Art von Störung. Dies wird von den Polen benutzt: Ihre Fälschung bezeugt, dass der Ryazan-Führer der Lyapunow-Miliz entschlossen ist, die Kosaken zu zerstören. Die Kosaken nennen ihn auf einem Kreis, wo sie ohne Anklage und Gerichtsverfahren auf reinen Gefühlen den Führer der Aufständischen töten. Infolgedessen verlassen die meisten Adligen das Lager. Sterben des Hungers in der Hauptstadt (Gefängnis Chudov Kloster), Hermogenes, fordert Patriarch Menschen gehorchen jetzt nicht den Anweisungen der Region Moskau Gouverneur Dmitry Trubetskoy und I. Zarutsky. Der Archimandrit des einflussreichen Trinity-Sergius-Klosters, Dionysius, steht jedoch für Solidarität, genau unter ihrem Kommando. Schließen Kosak Ablösung bleibt in Moskau unter Belagerung bis Mitte Sommer 1612, aber bei der Annäherung der zweiten Milizeinheiten, in Rjasan Land lief, Astrachan, und in der nachfolgenden Kämpfen mit Eindringlingen ist nicht beteiligt. Zarutskiy hat eine Trumpfkarte  Marina Mnishek mit dem Sohn des falschen Dmitry II., Der Ataman möchte es später für seine eigenen Zwecke benutzen. An den Wänden der Hauptstadt sind die Kräfte von Trubetskoi, direkt in der Ermordung von Lyapunov nicht beteiligt.


1


2


3


4


5


6


7


8


9


10


11


1. Sigismund Plan, 1610, vor der Zerstörung von 1612. Der Norden hier ist auf der rechten Seite. In der Kurve des Flusses Neglinka (dann konnte es einen wunderbaren Fisch fangen)  der Kreml.

Es ist interessant, dass die Türme befinden und die Mauern des Kreml ist heute nicht ganz so auf der Karte angezeigt, obwohl der architektonischen Komplex unter Ivan gebildet bereits der Schreckliche und sein Vater, der Kaiser von Russland, Vasily Dritten.

2. Dieses Bild, wie es gefühlt wird, vermittelt die Atmosphäre der Herrschaft der Moskauer Fürsten bis zur Zeit Peter des Großen.

3. Die Befreiung Moskaus von fremden Eindringlingen, 1612: eine künstlerische Rekonstruktion, die sich gut für die Reise in der Zeit eignet.

4. Patriarch Hermogenes, eine Ikone, die nicht nur die Erscheinung des Hirten, sondern auch die Stimmung der Zeit getreu widerspiegelt.

5. Roter Platz. Vergleich mit der modernen Zeit. Ein Leitfaden für Reisende in der Vierdimensionalen Welt. Blick auf den Universal-Hauptspeicher (GUM), erbaut 1896 auf dem Gelände verfallender Einkaufspassagen.

Es gibt so ein Buch, eine Fantasie; Das Land der verlorenen Seelen, der amerikanische Schriftsteller Neil Shusterman. In einer anderen Welt werden moderne Gebäude mit signifikanten, im spirituellen Plan, Gebäuden vergangener Epochen kombiniert. Vielleicht, wie die Verbindung von Vergangenheit und Gegenwart eine Art Volumen des Lebens schafft, neue Bedeutung Existenz gibt, öffnet sich die ungewöhnliche Perspektive des Lebens, öffnet sich die Seele neue Quellen der psychischen Energie.

Um zumindest einen kleinen Schritt zu diesen Entdeckungen zu machen, die Leser auf die Aktivität der Bewegung des tiefen Verständnisses der Geschichte zu ziehen, sowohl das ewige Leben  das ist eine der wichtigsten Aufgaben der Geschichte von fast alles.

6. Roter Platz, eine Stätte in der Nähe der Basilius-Kathedrale. Der Tempel selbst besteht aus neun getrennten Kirchen mit ihren heiligen Altären. Es wurde 1555  1561 von Zar Iwan dem Schrecklichen errichtet. Der berühmteste Name ist der Pokrovsky (Troitsky) Dom, benannt nach dem heiligen Narr und Heiliger, Basilius der Selige (Nackt), der hier begraben wurde.

Bis 1813 in der Pokrowski Kathedrale entlang der Kremlmauer (befindet sich jetzt das Mausoleum) Wehrgraben mit Wasser aus dem Fluss Neglinka gefüllt erstreckt. Hinter der Kremlmauer zeigt ein Foto vom Ende des 19. Jahrhunderts die Kuppeln, die 1932 vom Kloster Chudova abgerissen wurden. Später gibt es das administrative 14. Gebäude des Kremls. Im Jahr 2014, der russische Präsident, auf das Gebäude unter Reparatur suchen (hat bereits 8 Milliarden Rubel aus dem Haushalt ausgegeben, oder US $ 250 Millionen. Bei der Geschwindigkeit) fällt die Phrase, die schön wäre im Prinzip die Klosteranlage in seiner ursprünglichen Form wiederherzustellen. Infolgedessen wird das 14. Korps (das auch eine gewisse historische Bedeutung erlangt hat) im Hinblick auf eine weitere mögliche Entwicklung des Territoriums zerstört. Heute, also Anfang 2018, gibt es auf dem Gelände dieser beiden wesentlichen Strukturen einen gewöhnlichen Rasen.

7. Straße Nikolskaja, im frühen zwanzigsten Jahrhundert, und jetzt. Die Richtung zum Lubjanka-Platz (das Gebäude der Staatssicherheitsorgane, Cheka-NKVD-KGB-FSB, sowie das Zentralkaufhaus Kinderwelt).

8. Nikolskaya Straße. Blick auf die Nikolsky (heute geschlossenen) Tore des Kreml, auf die vor dem Erscheinen des Roten Platzes am Ende des 15. Jahrhunderts direkt die Autobahn führte.

9. Prechistenskaya Damm. Metro Kropotkinskaya, unten, entlang der Kathedrale von Christus dem Erlöser, und rechts. Auf dem Weg dorthin finden Sie im Haus auf dem Damm, er auch Government House, 1931 gebaut, bekannt vor allem eine große Anzahl von Bewohnern der verdrängten  großen Persönlichkeiten des öffentlichen Lebens.

Auf dem Foto, wie Sie hier sehen können, sind Moskau, der Kreml und die Brücke fast unkenntlich  obwohl genau hier der Fotograf das Foto gemacht hat. Die Steintreppe verschwindet, die Höhe, die solide Laterne, das Ausmaß der Straßen und Gebäude ändert sich. Was ist die Täuschung des Sehens, die Eigenschaft der Optik fotografischer Apparate oder die eigentliche anomale Eigenschaft von Raum und Zeit.

Im Allgemeinen ist ein Gefühl jedoch, dass Moskau Anfang des zwanzigsten Jahrhunderts unterscheidet sich von der heutigen Hauptstadt ebenso rosig, temperamentvoll, liebevoll und Spaß Mädchen Outfits von einem blassen, nicht wissend, was sie will, melancholische Damen.

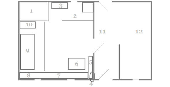
10. Orthodoxe Kirche.

1) Thron (Altar, aus dem lateinischen Altarium, «hoch», Knauf des Altars). Der Name ist in der orthodoxen Tradition üblich. Zu Beginn (in der vorchristlichen Zeit) Altar der Erde gebaut, Ton, Stein (möglicherweise massiven Block aus Stein) in den Orten, wo am deutlichsten die Interaktion mit einer höheren Leistung aufgetreten ist  durch den Strom, in einer Lichtung im Wald, auf dem Gipfel des Berges. Im antiken Griechenland ist der Altar (ein mächtiges steinernes Fundament) im Wesentlichen der Tempel selbst. Der Thron der Ostkirche ist ungefähr gleich dem Altar der Westkirche.

Der orthodoxe Thron ist ein quadratischer Tisch, der Ort der geheimnisvollen Gegenwart Gottes. Hier sind die heiligen Reliquien. (1)  antimension, Taschentuch, mit dem Zeichen des Kreuzes, mit in sie vernäht RELIQUIEN jede GreatMartyr und Signatur und Bischof Sprengel, an dem der Bügel bezieht. Antimins ist eine Art Dokument, das die Durchführung der Liturgie erlaubt. Wenn Service antimension Durchführung entfaltet, legte sie den Kelch und Patene  Gefäß für Wein und Brot für die Gemeinschaft notwendig. Berühren Schal Nur Priester in vollen Ornat den Dienst, oder (zu der Zeit der Anbetung ist) ein kaschierten Bandes stahl (griechisch επιτραχήλιον.  Das um den Hals). In bestimmten Fällen kann das Antimension aufgrund seiner Stärke den Thron selbst ersetzen.

Ваша оценка очень важна

0
Шрифт
Фон

Помогите Вашим друзьям узнать о библиотеке

Скачать книгу

Если нет возможности читать онлайн, скачайте книгу файлом для электронной книжки и читайте офлайн.

fb2.zip txt txt.zip rtf.zip a4.pdf a6.pdf mobi.prc epub ios.epub fb3