Кононенко Евгений Иванович - Анатолийская мечеть XI–XV вв. Очерки истории архитектуры стр 8.

Книгу можно купить на ЛитРес.
Всего за 514.9 руб. Купить полную версию
Шрифт
Фон

Вероятно, в качестве источников сельджукской архитектуры в привычном значении – как определенного территориально-хронологического комплекса памятников – должны рассматриваться все региональные художественные традиции, с которыми тюрки, могли познакомиться в процессе миграций на запад. Этническая экспансия тюрков не сопровождалась экспансией культурной ввиду отсутствия самого предмета экспансии – развитой тюркской культуры. Создавая новую традицию мусульманской архитектуры на подвластных землях, сельджуки, до того момента не проявившие себя ни в качестве создателей сколько-нибудь оригинальных сооружений, ни в качестве стойких приверженцев каких-либо определенных художественных идей, имели возможность – подобно арабам четырьмя столетиями ранее – обращаться к любым имевшимся источникам, в том числе, очевидно, и домусульманским, и современным сельджукскому завоеванию немусульманским. Сочетая прагматичную суннитскую идеологию с мистическими суфийскими откровениями, сплавляя в официальном заказе разные художественные традиции, сельджуки оказываются своеобразным катализатором эволюции мусульманской архитектуры.[73]

* * *

Одно из возможных направлений этой эволюции, притом явно архаизирующее, демонстрирует самая ранняя сельджукская мечеть Турции – Улуджами Диярбакыра. Стоящий на Тигре и являвшийся важным пунктом, позволявшим контролировать сообщение между Анатолией, Сирией и Ираком, Диярбакыр, византийская Амида, рано стал пограничным городом и в IX–XI вв. последовательно служил столицей «буферных» эмиратов Шейхидов и Марванидов. В начале X в. южные городские (Мардинские) ворота украшаются надписями с именем сюзерена – аббасидского халифа Муктадира. В 1056 г. Марваниды признали власть Тогрула и сохранили вассальную автономность своего эмирата, но в 1085 г. их земли были присоединены к государству Великих Сельджуков.

Побывавший в Диярбакыре около 1045 г. персо-таджикский теолог Насир Хосров (Насир-и Хусрау) был восхищен здешней достопримечательностью: «Соборная мечеть построена из того же (что и городские стены. – Е. К.) черного камня, и правильнее и крепче ее здания построить невозможно. В мечети двести с лишком колонн из камня, каждая колонна из одного цельного куска, на колоннах покоятся каменные своды и на них снова возвышаются колонны, покороче первых. На втором ряду тоже покоятся своды, возвышаясь над первыми большими сводами. Крыши этой мечети возведены в форме ослиной спины, а все резные части, из дерева и камня, раскрашены и отлакированы».[74] Однако приведенное описание имеет отношение к более ранней мечети, для которой использовалась часть церкви Св. Фомы, разделенной между христианами и мусульманами (как это было и с базиликой Иоанна Крестителя в Дамаске). Исходя из пропорций сохранившейся мечети Диярбакыра, совершенно не схожей с раннехристианскими базиликами Сирии, от которых церковь Св. Фомы вряд ли сильно отличалась, К. Кресвелл доказал, что нынешнее здание мечети никогда не могло служить церковью.[75] Кроме того, в сохранившемся молитвенном зале отсутствуют отмеченные две сотни колонн, а арки северной стены зала, соединяющие помещение с двором (сахн), явно «родные», выложенные при строительстве здания, а не пробитые в уже существующей стене, как это должно было произойти при перестройке церкви в мечеть.


Диярбакыр. Улу-джами. Аэрофотосъемка


Иными словами, текст Насира Хосрова не имеет отношения к ныне существующей большой мечети Диярбакыра и доказывает лишь, что к середине XI в. в городе уже существовала огромная соборная мечеть, а нынешнее здание возведено после 1045 г. Сохранившиеся на фасаде Улуджами надписи содержат две даты – 484 г.х. (1091/92) и 550 г.х. (1155/56), причем надпись с более ранней датой упоминает султана Малик-шаха, на нее и принято опираться при датировке памятника, рассматривая его в числе построек Великих Сельджуков.[76]


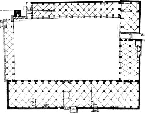
Диярбакыр. Улу-джами. План


Как уже было сказано, диярбакырский памятник следует отнести к архаизирующей линии планировки мечетей. Достаточно напомнить, что в последние годы правления Джелал ад-Дина Малик-шаха (умершего именно в году, указанном на фасаде Улу-джами) перестраивается молитвенный зал (шобестан) Пятничной мечети Исфахана, в котором на массивных кирпичных столбах на 30-метровую высоту поднят знаменитый купол Низама аль-Мулька диаметром 14 м, а уже через несколько десятилетий исфаханская мечеть обретет знаменитую айванную планировку. Рассматриваемую же Улу-джами немудрено принять за перестроенную христианскую базилику: молитвенный зал образован тремя нефами, параллельными стене киблы, рассеченными посередине сильно повышенным трансептом, акцентирующим ось михраба.

Источник такого плана определяется однозначно – Большая мечеть Омейядов в Дамаске (706–711 гг.). Уже в конце XII в. Мухаммад ибн Джубайр писал, что «ее общепризнанная известность позволяет не тратить время на ее описание».[77] Планы двух мечетей объединяет трехнефное членение молитвенного зала, повышенный трансепт по центральной оси, обширный северный двор (в Дамаске окруженный галереями, в Диярбакыре – обстроенный зданиями). Необходимо учесть, что выходящая во двор аркада молитвенного зала мечети Омейядов до конца XIX в. оставалась открытой, не отгораживая пространства зала от двора, как это было принято во всех арабских мечетях и как это было сделано в Улу-джами.


Дамаск. Мечеть Омейядов. План


Алеппо. Джами аль-Кабир. План


Диярбакыр. Улу-джами. Северный фасад молитвенного зала


Архитектурная практика Халифата уже имела прецеденты сознательного и даже декларативного воспроизведения авторитетных памятников, – если не копирования, то, во всяком случае, осознанного «цитирования образа»: «судьба этого образа может оказаться совершенно в другой культурно-идеологической среде, когда прошлое становится анахронизмом, но образ продолжает успешно жить».[78] Достаточно назвать возведенную Ахмедом ибн Тулуном мечеть в египетском Фустате (876 г.), минарет которой, имеющий внешнюю лестницу, явно отсылает к уже известному, знаковому прототипу – спиральному минарету Мальвия в иракской Самарре: столица «свежеоснованной» династии Тулунидов на Ниле «цитирует» столицу Аббасидов на Тигре. Безусловно, мечеть Дамаска воспринималась как не менее знаковый памятник, о чем и свидетельствует Ибн Джубайр; но, с одной стороны, пограничный Диярбакыр вряд ли требовал столь узнаваемых архитектурных цитат, а с другой, – уже перестройка мечети Исфахана демонстрирует изменения и в архитектурном вкусе, и в строительных возможностях Великих Сельджуков, да и опыт возведения мечетей с базиликальными залами сельджуки ни в Средней Азии, ни в Иране усвоить, как мы видели, вряд ли могли.

Однако если бы речь шла лишь о выборе знакового прототипа для анатолийской (в общем-то провинциальной) мечети, то в зоне сельджукского владычества уже была и иерусалимская Масджид аль-Акса,[79] «Мечеть Отдаленнейшая», одна из трех наиболее почитаемых в мусульманской традиции мечетей, к которым, согласно достоверным хадисам от Абу Хурайры, разрешено паломничество и молитва в которой обладает особыми достоинствами.[80] Здание мечети было закончено в 705 г. (когда началась постройка дамасской мечети), в течение VIII в. восстанавливалось после землетрясений и в последний раз перестраивалось после землетрясения 1033 г., – незадолго до сельджукского нашествия. В плане перестроенной мечети аль-Акса доминируют повышенный и более широкий центральный неф, акцентированный куполами над михрабной ячейкой и над входом, и широкий трансепт вдоль стены киблы. Т-образный базиликальный план аль-Акса неоднократно повторялся в больших мечетях Магриба, – в Сиди-Окба в Кайруане[81] (IX в.), аз-Зейтуна в Тунисе (IX–X вв.), отчасти при перестройке XI в. Большой мечети в Сфаксе, позже, в середине XII в. – в Большой мечети марокканского Тинмаля и Кутубийе в Марракеше. Но по каким-то причинам – теологическим ли (уникальное значение иерусалимской мечети, ее эсхатологический смысл[82]), политическим (повторение Т-образного плана в памятниках, находящихся на территории Фатимидов[83]), каким-либо еще, – в архитектуре Сирии, более знакомой сельджукам, этот план не воспроизводился.

Ваша оценка очень важна

0
Шрифт
Фон

Помогите Вашим друзьям узнать о библиотеке

Скачать книгу

Если нет возможности читать онлайн, скачайте книгу файлом для электронной книжки и читайте офлайн.

fb2.zip txt txt.zip rtf.zip a4.pdf a6.pdf mobi.prc epub ios.epub fb3

Похожие книги

Популярные книги автора