
Порядок работы состоит в следующем. Когда угол загрунтован, проводят полутерком снизу вверх и в обратном направлении. Далее наносят накрывочный слой и снова проходят полутерком снизу вверх и сверху вниз. Поверхность получается гладкая, ровная. Теперь достаточно пройтись по ней слегка войлочной или поролоновой теркой и отделка завершена.
Такой порядок одинаков и для отделки лузгов, и для отделки усенков.
Отделка откосов. Приступая к отделке дверных и оконных проемов, штукатур должен, прежде всего, навесить направляющие. Для этого служат обычно деревянные рейки. Было время, когда их прибивали к стене гвоздями. Это далеко не лучший способ. Во-первых, правильного положения направляющих добиться трудно. Во-вторых, гвозди расходуются в больших количествах. И, в-третьих, не в каждую стену удается легко загнать гвоздь.
Для навешивания направляющих штукатуры используют винтовой реечный зажим (рис. 54). Острый конец стержня зажима вкалывают в оконный блок. Фланец с рукояткой может перемещаться по резьбе, нанесенной на верхнюю часть стержня. Перемещая фланец, рейку прижимают к стене.

Другой способ - с помощью их "примораживания". Поступают здесь так же, как при устройстве деревянных маяков "на присос". Берут специально заготовленные рейки шириной 10–12 см, толщиной 2 см. По всей высоте рейки просверливают несколько отверстий для облегчения веса и лучшего сцепления с раствором. С одной стороны дощечку простругивают, с другой оставляют шершавой - для лучшего сцепления.
На то место, где надо установить рейку, набрасывают слой процеженного известкового раствора, накладывают на него рейку неостроганной стороной, прижимают, проверяют вертикальность правилом с отвесом.
Такой способ вдвое повышает производительность труда рабочего, устанавливающего рейки, к тому же и гвозди становятся не нужны, и можно обойтись без винтового реечного зажима.
Там, где есть отходы сухой штукатурки, направляющие рейки делают из этого материала. Заготавливают из него полоски шириной 4–6 см и наклеивают их по краям откосов на сульфитно-гипсовой или гипсо-опилочной мастике: на брусок и стену сплошным слоем наносят сульфитно-гипсовую мастику, накладывают заготовленную полоску, подмазывают той же мастикой кромки, прижимают и проверяют контрольной рейкой с отвесом. Удобнее и быстрее на усенок оконного откоса накладывать уголок из сухой штукатурки с гранями 5–6 см. После установки уголка правильность ее проверяют правилом с отвесом. Оставшуюся площадь откоса оштукатуривают и затирают заподлицо с уголком.
Кстати, при мокром способе отделки полоски сухой штукатурки помогают укрепить места примыкания дверных коробок к стенам. Именно в этих местах со временем обычно появляются трещины. Полоска сухой штукатурки должна быть на 5 см шире бруска, к которому прикреплена коробка. Она должна заходить на перегородку или стену.
Полоска сухой штукатурки может служить и маяком для дальнейшей отделки стены раствором.
Теперь поговорим об очень важном условии качественной обработки оконных и дверных откосов. Дело в том, что откосы не прямоугольны. Внутренняя плоскость несколько развернута в сторону от рамы, образуя со стеной тупой угол - его называют "угол рассвета". Без этого проем выглядел бы некрасивым, приглушенным.
Но тупой угол для строителей - добавочные хлопоты. Как рассчитать угол, на который необходимо развернуть откос? Существует давно установленное правило: откос должен быть развернутым таким образом, чтобы отступление его от рамы на уровне стены было равно 1/10 глубины проема от стены до рамы. Как же поступали раньше? Рабочий замерял глубину проема, определял одну десятую от этого числа. Делал соответственно этому нужной длины планочку, набивал ее перпендикулярно на одну из сторон деревянного угольника. Вторую сторону прикладывал к раме. Вылет малой планочки и показывал место, до которого надо развернуть откос. Согласитесь, что такая технология делает работу долгой, неточной. Да и угольников с реечками не напасешься, забивая без конца гвозди.
Поэтому предложен инвентарный металлический угольник. Он состоит из двух линеек длиной 60 и 15 см и шириной 2,5 см. Линейки скреплены заклепками друг с другом под прямым углом. На длинной линейке сантиметровые и полусантиметровые деления, посередине у нее длинная прорезь. Нужна еще третья линейка-движок, длиной 10 см и шириной 2 см. В ней тоже выбрана прорезь такой же ширины, как в длинной линейке. На движке тоже сантиметровые деления.
Наложив движок на длинную линейку, их скрепляют через прорези общим барашковым болтом.
Работа ведется как и старым деревянным угольником. Упирая в раму короткую сторону металлического угольника, определяют на длинной стороне глубину проема. Затем устанавливают сюда движок. Выдвигают его в сторону откоса на 1/10 глубины проема, делают отметку на подоконнике. Такие же замеры производят на противоположном откосе и на верху окна.
Только определив положение "угла рассвета", ставят в соответствии с этим направляющие рейки.
У окна различают внутренний и наружный откосы, между рамами - заглушина. Все эти места требуют отделки.
Но сейчас применяют спаренные окна-блоки, где наружная и внутренняя рама соприкасаются.
В современных полносборных домах из деталей повышенной заводской готовности нет необходимости даже в оштукатуривании внутренних откосов, не говоря уже о наружных, - все это делается на заводах.
А вот если придется работать в доме старой постройки или возводимом по старинке, да еще предложат штукатурить наружный фасад, то здесь без "стариков" не обойтись. И отделка наружного откоса будет, пожалуй, далеко не самой легкой операцией.
И здесь, прежде всего, ставят направляющие рейки. Плоскость между рейкой и оконным блоком, а также промежуток между рамами заполняют раствором и разравнивают специальными шаблонами (рис. 55).

Заглушины между оконными коробками оштукатуривают тем же раствором, что и внутренние помещения, разравнивают фасонной малкой (рис. 56), придающей заглушине форму желобка. После разравнивания их обычно обрабатывают железнением.

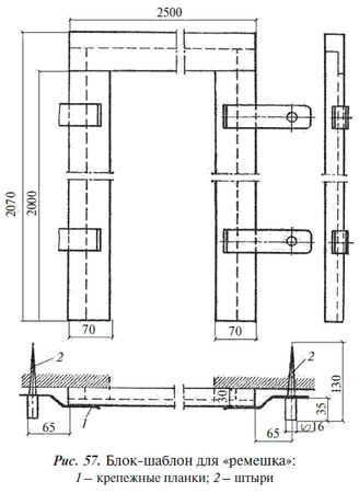
Наружные оконные откосы отделывают тем же раствором, каким штукатурят фасад здания. Кирпичные здания не всегда штукатурят снаружи, а только старательно расшивают швы кладки. А вокруг окон создают из раствора так называемый "ремешок" - продолжение наружного откоса на стене. Эти "ремешки"-ленты штукатурят одновременно с откосами, используя для этого блок-шаблон (рис. 57).

Установив блок, забрасывают в паз раствор, стараясь его получше уплотнить. Это очень важное условие: именно хорошо утрамбованный раствор дает ровное, красивое обрамление окна, украшающее фасад здания.
Заметим, что без такого приспособления устройство "ремешка" можно доверить лишь опытному штукатуру. Пользуясь блоком-шаблоном, обрамление может выполнить и новичок-отделочник. Причем последний может даже обработать два окна, пока опытный мастер без блока будет возиться с одним.
Разделка рустов. Рустами называют искусственно созданные в штукатурке канавки или валики. Например, русты делают на фасадах при разделке под естественный камень, при оштукатуривании стен лестничных клеток, при отделке потолков, смонтированных из сборных железобетонных настилов.
Инструмент, которым прорезают русты, называют рустовкой, или расшивкой. Простейшая рустовка представляет собой деревянный шаблон с вырезанной на направляющей плоскости канавкой или валиком - это зависит от требуемой формы руста.
Профессиональные строители, как правило, давно не пользуются деревянными рустовками, их сменили дюралевые.
Сначала на базе деревянной рустовки была создана более удобная и универсальная рустовка, которой можно тянуть и канавку, и валик (рис. 58). Здесь деревянная площадка размером 240×100 мм служит основанием. Посередине ее укреплена деревянная вертикальная стойка размером 170×25×100 мм, которая скреплена дополнительно с основанием двумя деревянными подкосами диаметром 15 мм в сечении. С одной стороны стойки укрепляют на болтах металлическую пластинку с выступом, с другой - пластинку, имеющую полукруглый паз. Первая служит для расшивки канавки, вторая для вытягивания валика. Стороны стойки, на которых крепятся режущие пластинки, обивают металлическими полосками. Размеры такой рустовки 240×195×100 мм и весит она не более 250 г.

Но все же это приспособление громоздко. И скоро от него отказались, изготовив из дюралюминия более легкие рустовки отдельно для каждой операции. Рустовка по концам металлической полосы имеет два выступающих валика для выборки канавки руста (рис. 59) или две подобные же пластинки, но имеющие на рабочей части полукруглый паз. Рустовка может служить также для установки направляющей рейки.