Всего за 250 руб. Купить полную версию
* * *
Археология в рассмотрении поселений даёт большие преимущества в сравнении с письменными традициями. Предмет её изучения достаточно конкретен, источники практически неисчерпаемы. Следует учитывать и то, что на планы, фортификацию и постройки раскапываемых поселений проецируются конкретные предметы древнего обихода.
В подходе к хазарским "городам" особо выделю два признака. При этом под "хазарскими" подразумеваются исключительно памятники в бассейне Дона и, возможно, Итиль. Речь идёт о городищах, возведённых самим населением каганата, а не наследованных от предшествующих эпох.
1. Архитектурно-планировочный облик. При обращении к памятникам любой древней культуры его исключать невозможно. Он материально (до визуальности), археологически отличает город от села/деревни. В нём отражаются социальная структура городского населения, его состав и организация. Всё-таки облик поселения как города (не села!) определяли не жилища знати/ аристократов, не культовые строения, а тип и структура расположения жилищ горожан с их образом жизни и занятиями. Даже при наличии письменных источников только археология во всей полноте даёт представление о плане и архитектуре древнего города. Город без рядового городского населения - это нонсенс. Не буду развивать эту многократно обсуждавшуюся тему. За нею встаёт не менее сложный вопрос о функции того или иного поселения, которому присваивается название "город", о городах-крепостях и т. д. Здесь теория города должна неразрывно сочетаться с конкретикой исследуемых поселений и общества, к которым они принадлежали.
2. Структура. Как ни странно, признак не однозначен. Нет ясности, что включать в состав "города", только ли городища или вместе с ними и прилегающие открытые поселения. Появляется большой соблазн начать некоторые игры с термином "посад".
Ниже я коснусь лишь некоторых археологических памятников исключительно с целью показать состояние проблемы "существовали ли в Хазарии города?". Будут упоминаться преимущественно те же археологические памятники, что и в статье С. А. Плетнёвой (2002). Все они известны по многим публикациям. Поэтому я предельно ограничу ссылки на издания. Это преимущественно памятники с кирпичной или каменной фортификацией. Обращение к некоторым городищам с валами (Сидоровское, Андрей-аул, Маяки) спровоцировано другими авторами, представляющими их остатками городов.
Бассейн Дона - Северского Донца
Саркел-Белая Вежа
М. И. Артамонов о Саркеле
С. А. Плетнёва пишет, что в 30-е гг. М. И. Артамонов "утверждал", среди прочего, что "в первой половине X в. Саркел был уже городом, о чём свидетельствуют остатки ремесленных мастерских" (Плетнёва С. А. 1996. С. 6). М. И. Артамонов не только не "утверждал" этого, но и никогда не занимался теоретическим вопросом, является ли Саркел городом (Рис. 1, 2). В археологических разделах своих трудов М. И. Артамонов избегал поверхностного теоретизирования, предпочитая анализировать непосредственно источники. Только в связи с сообщением Константина Багрянородного он дважды употребил термин "город". Типичное выражение М. И. Артамонова - "городище", не только для Саркела, но и для Правобережного Цимлянского, Потайновского и других. Характерные же для Саркела - "кирпичная крепость" или "крепость" (Артамонов М. И. 1935. С. 81–85 и сл.). Гораздо более показательна итоговая статья М. И. Артамонова, в которой Саркел недвусмысленно назван крепостью (Артамонов М. И., 1958. С. 11, 48).

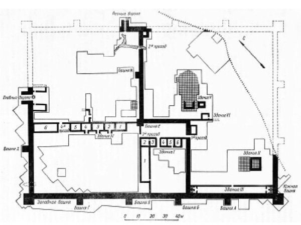
Илл 1. Саркел. Общий план крепости

Илл. 2. Раскопки Саркела. Аэрофотоснимок, 1951 г.
Уровень развития ремесла в Саркеле ничем не отличался от общего для каганата. М. И. Артамонов упоминает несколько гончарных печей и косторезное дело. Что касается мастерских, на которые ссылается С. А. Плетнёва, то известна одна (!): "Несомненных следов металлургического производства в хазарском слое Саркела не найдено, за исключением одной кузницы…" (Артамонов М. И. 1958. С. 39–43).
Белую Вежу, т. е. Саркел русского этапа, М. И. Артамонов действительно называл городом и в последних работах, явно в соответствии с ситуацией своего времени. Но в 1934 г. он отмечал, как неверно оценённые результаты раскопок, проведённых в течение нескольких дней, способствовали "возвеличиванию" Белой Вежи. "…Произведённые здесь (на городище. - В.Ф.) Сизовым и Веселовским раскопки дали крайне неотчётливый материал, среди которого наиболее заметное положение заняли вещи русского происхождения, в связи с чем явилась тенденция рассматривать Цимлянское городище как русский город, как форпост русской культуры в её распространении к Востоку для одних, или же даже, как указание на глубокую древность русского населения на Дону и движения его на запад для других" (в: Медведенко H. A. 2006. С. 122).
То, какие разные определения давал М. И. Артамонов в разное время Саркелу и Белой Веже, хорошо прослеживается по архивным материалам, опубликованным в книге H. A. Медведенко. При том что в ранних заметках по отношению к Саркелу можно встретить и "город", и "крепость", медленная трансформация в сторону "крепости" очевидна. До и после раскопок 1934 г. Артамонов прямо говорит о городе Саркеле (в: Медведенко H. A. 2006. С. 119, 122), но тогда же появляется и двоякое "город-крепость" (Там же. С. 124). Однако уже в 1935 г. после двух сезонов раскопок встречаем более ясную формулировку: "Можно говорить, что это действительно было укрепление, которое превратилось в город, в ремесленный центр в русскую эпоху". Знаменательно завершение: "Но для меня Саркел интересен только до этого момента" (Там же. С. 127). Объявить год спустя отсутствие интереса к русскому городу было бы небезопасно, тем более в конце 40-х - начале 50-х гг. XX в.
В 1949 г. в тезисах к выступлению на Пленуме ИИМК Белая Вежа названа "городом", а её могильник "городским кладбищем", но в тезисах 1950 г. "кладбище" лишь дополняет данные "городища" (в: Медведенко H. A. 2006. С. 134, 135). И тем не менее Белую Вежу в итоге он относит к специфическим "пограничным городам-крепостям" (Артамонов М. И. 1958. С. 56).
Особенностью Белой Вежи была её территориальная удалённость от собственно русских земель. Отсюда необходимость самообеспечения продуктами как ремесла, так и сельского хозяйства. Последнее же "было необходимым условием развития всех других, уже собственно городских видов хозяйственной деятельности" (Артамонов М. И. 1958. С. 65).
Не в укор М. И. Артамонову замечу, что несколько завышенную им оценку ремесла беловежцев надо объяснять опять-таки политическими особенностями времени, в которое писалась статья. Но, декларировав в тезисах к Пленуму ИИМК 1952 г. (время борьбы с космополитизмом) обнаружение "многочисленных ремесленных мастерских русского периода", назвать он смог всего две - кузницу и мастерскую по обработке янтаря (в: Медведенко H. A. 2006. C. 136). После известной публикации в газете "Правда", по сути отстояв все свои основные позиции на заседании Ученого совета ЛГУ, М. И. Артамонов обязан был произнести: "Материалы, полученные раскопками Саркела-Белой Вежи, убедительно свидетельствуют о превосходстве русской славянской культуры над предшествующей хазарской". А по-другому сравнивать в той конкретной ненормальной политической ситуации культуры славянскую и салтово-маяцкую было немыслимо. Любопытно, что уже в 1958 г. он замечает, что и эта кузница возникла, кажется, в хазарское время (Артамонов М. И. 1958. С. 43). Невозможно представить, что археолог Артамонов не видел несравнимо более высокий уровень материальной культуры Хазарского каганата во всех её проявлениях.
Сегодня известно, что в выработке черных металлов и изделий из них каганат опередил славян даже хронологически, а в гончарном ремесле превосходил во все века своего существования. Да и в целом салтово-маяцкая культура несравнимо выше культур соседних славянских племён, в частности боршевской.