Всего за 104.9 руб. Купить полную версию
Чтобы подобных казусов не возникало, стоит заняться планированием участка заранее. Ведь на нем разместится не только жилой дом, но и различные хозяйственные постройки (начиная от гаража и заканчивая сарайчиком для сельхозинвентаря), баня, парники, бассейн, декоративные водоемы, сад, клумбы и др. В конечном итоге все элементы должны составить гармоничный ансамбль, чего невозможно добиться без точного плана.
Конечно, если вы приобрели участок площадью 1 гектар, то можете не беспокоиться: места хватит для воплощения любых ваших фантазий. Но если участок относительно невелик (20–30 соток), то нужно как следует постараться, чтобы на нем поместилось все, о чем мечтаете вы и члены вашей семьи, и чтобы он при этом не выглядел нагромождением различных элементов, а был красивым и удобным для жизни.
Процесс планирования земельного участка принято разделять на три стадии:
♠ разделение всей территории на фрагменты;
♠ определение местоположения дома;
♠ определение местоположения других построек и сооружений: хозяйственных построек, гаража, бани, парников и теплиц, сада и огорода, бассейна, декоративных водоемов и т. п.
На первой стадии следует определить размеры, форму и местоположение участка. Оптимально, если удастся свести к минимуму протяженность участка вдоль улицы. В таком случае затраты на устройство дорог и пешеходных дорожек, сетей водоснабжения, канализации, электроснабжения и т. д. будут снижены.
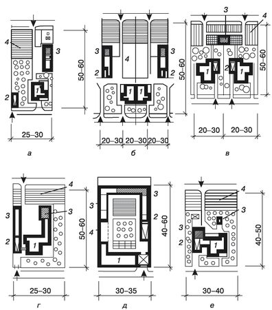
Варианты планировки земельных участков представлены на рис. 2.1.

Рис. 2.1 Рациональная планировка земельных участков для индивидуальных жилых домов (размеры указаны в метрах):а- хозсооружения сблокированы в разных зданиях;б- все хозсооружения сблокированы в одном здании;в- гараж сблокирован с домом, хозсооружения отделены;г- хозсооружения образуют двор;д- хозсооружения образуют периметр;е- единое комплексное здание:1- дом;2- гараж;3- хозсооружения;4- сад, огород
Как видите, возможно использование двух способов:
♠ дома располагаются отдельно от хозяйственных построек (см. рис. 2.1, а - в);
♠ хозяйственные постройки примыкают к жилым домам (см. рис. 2.1, г - е).
Первый способ можно применять в любых климатических условиях независимо от типа жилого дома. Второй способ в основном используется либо в суровых климатических условиях (варианты д и е), либо в жарком климате (варианты г и д).
С точки зрения планирования участка особенно важно определиться с этажностью дома. Часто, если участок невелик, а семья большая, приходится идти по пути увеличения количества этажей. Так, дом общей площадью 250–300 м может иметь четыре этажа. В результате получается этакая Эйфелева башня, устремляющаяся к облакам. Замечу, что собственный многоэтажный дом - не лучший выход из положения. Во-первых, он обходится дороже, чем одно-двухэтажное строение. Во-вторых, лестницы отнимают немало драгоценного места. В-третьих, не всем легко подниматься по лестницам, и если в семье есть пожилые люди, то им нужно отводить комнаты на первом этаже. Но если дом узкий и высокий, то комнат может попросту не хватить: обычно на первом этаже размещаются кухня, санузел, кладовки, прихожая, и в лучшем случае остается место лишь для одной комнаты. Установка лифта стоит дорого. Кроме того, такой дом неудобно убирать. Либо придется носить по многочисленным лестницам пылесос, ведро с водой и т. д., либо на каждом этаже держать по пылесосу. Так что лучше сразу приобрести участок попросторнее.
Еще один не самый удачный вариант - совмещение дома и хозяйственных построек. Конечно, на плане такое здание выглядит довольно привлекательно. Оно компактно, занимает на участке минимум места, из дома обычно запланированы проходы в гаражи, мастерские, кладовые. Однако есть и минусы. Постройка подобного комплекса обходится дороже, чем размещение хозяйственных построек отдельно от дома. Кроме того, при раздельном строительстве есть возможность производить работы поэтапно. То есть сегодня вы строите дом, завтра - гараж, послезавтра - сарай, затем - баню и др.
Не так давно было модно совмещать под одной крышей все, что только можно. Особенно это касалось гаражей, бассейнов, бань и саун. В частности, вместо того, чтобы построить отдельное здание для бассейна, его размещали в цокольном этаже. Мотивация проста: так получается дешевле, да и место экономится. Однако практика показала, что дешевизной тут и не пахнет. Ведь в бассейне или бане всегда повышенная влажность. А следовательно, для этих помещений требуется усиленная гидро- и пароизоляция. Ну а ремонт обходится раза в три дороже, чем в случаях, когда бассейн, баня или сауна располагаются отдельно.
Что касается гаража, то удобно, когда из него можно попасть прямо в дом. Особенно это хорошо дождливыми осенними или морозными зимними днями. Но есть один нюанс. Запахи автомобильного топлива, масел, различной автокосметики, выхлопных газов неизбежно просачиваются в жилые комнаты. Кроме того, в холодное время года нежелательно держать автомобиль в непосредственной близости от отапливаемых помещений. Наконец, гараж относится к числу помещений повышенной пожарной опасности и требует соответствующих мер предосторожности.
Однако если нет возможности расположить гараж отдельно от дома, то приходится прибегать к совмещению (рис. 2.2–2.4). При этом важно помнить об устройстве хорошей вентиляции.

Рис. 2.2.Гараж, примыкающий к дому

Рис. 2.3.Гараж, расположенный непосредственно под жилыми помещениями

Рис. 2.4.Гараж, стоящий отдельно от дома
Сторонники компактного строительства обычно заявляют, что главный плюс "совмещенного" дома - снижение затрат на отопление: мол, гораздо дешевле отапливать всего один дом вместо нескольких построек. Но практика показывает, что затраты на отопление в обоих случаях различаются незначительно.
В любом случае выбор остается за вами.
На второй стадии нужно определить местоположение жилого дома. Он может размещаться:
♠ на переднем плане - по границе участка, которую называют красной линией, или на расстоянии 1–5 м от нее (см рис 2.1, а и д);
♠ в средней части участка, при этом отступ от красной линии составляет 5–15 м (см. рис. 2.1, б и в);
♠ в дальней части участка.
Если площадь участка достаточно велика, то предпочтительнее третий вариант, поскольку он обеспечивает максимальное уединение и экологическую защиту.
Отмечу, что месторасположение дома не всегда диктуется соображениями экологии. Так, если небольшой участок характеризуется значительным уклоном от улицы, а гараж расположен в цокольном этаже жилого дома, то здание приходится размещать в середине участка или даже на заднем плане, чтобы можно было соорудить не слишком крутую лестницу, а автомобиль не "нырял" в гараж с улицы. Если есть необходимость экономить площадь, можно устроить вход в дом через тамбур (рис. 2.5).
ВНИМАНИЕ
Вне зависимости от того, какое место выбрано для дома, необходимо правильно ориентировать жилые помещения по сторонам света, чтобы соблюсти требования к уровню инсоляции (естественного освещения) и естественной вентиляции.

Рис. 2.5.Вход в дом непосредственно с улицы через тамбур
На третьей стадии планируется размещение на участке других построек: гаража, бани, хозяйственных сооружений и т. д., а также сада и огорода. Если вы любите цветы, стоит заранее продумать, где лучше всего разбить клумбы того или иного типа. В противном случае вы можете обнаружить, что на идеально подходящем для альпийской горки месте уже начали обустраивать площадку для пикников или декоративный пруд.
Чаще всего сад располагается на переднем и среднем плане участка, а огород - на среднем и заднем. Но это не безусловное правило: можно на переднем плане разбить клумбы, на среднем - огород-цветник, а на заднем - сад. Все зависит от ваших представлений о красоте.
ПРИМЕЧАНИЕ
Не рекомендуется располагать поблизости от улицы площадки для игр и отдыха, особенно если движение транспорта достаточно интенсивное. Как бы ни был высок забор, отгораживающий участок от внешнего мира, разместив площадку для барбекю вдоль улицы, вы будете во время обеда наслаждаться не чистым воздухом, а выхлопными газами, а вместо умиротворяющей тишины слушать уличный шум.