
Рис. 87. Кольцевые снаряды: а – горизонтальные "гантели"; б – "гиря" на дуговой стойке; в – "гиря" на одиночной стойке. 1 – П-образная стойка-направляющая (водопроводная труба ¾ дюйма); 2 – упоры (отрезки трубы); 3 – покрышка от легкового автомобиля; 4 – покрышка от грузового автомобиля; 5 – прорези для рук; 6 – одиночная стойка (водопроводная труба ¾–1 дюйм)

Рис. 88. Молот: 1 – стойка; 2 – болт-ограничитель; 3 – покрышка; 4 – втулка
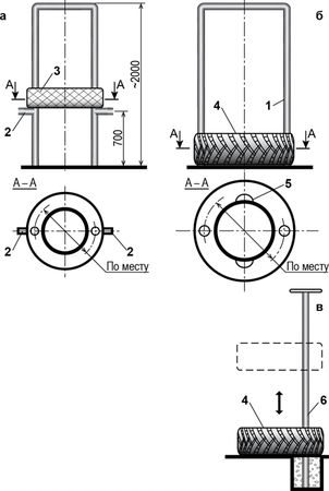
Следующий снаряд (рис. 87, б) можно сравнить по нагрузкам с гирей. Он содержит большую покрышку, центральное отверстие которой достаточно большое для того, чтобы в нем поместилось туловище занимающегося. Покрышка лежит между стойками, на которые она свободно насажена с помощью отверстий в боковинах. Поскольку гриф здесь отсутствует, в боковинах покрышки на противоположных сторонах вырубаются также отверстия побольше, обеспечивающие проход кистей для хвата занимающихся.
На этом снаряде выполняют главным образом тяги груза до уровня колен или пояса, причем груз оказывается доступным к перемещению лишь при включении в работу всех крупных мышц тела. Такие мощные упражнения способствуют совершенствованию общей силы.
Если же покрышку насадить не на дугу, а на одиночную стойку, как показано на рис. 87, в, то получим снаряд для дозированного подъема: на любой высоте рýки можно расслабить – и покрышка зависнет, самозаклиниваясь на стойке и давая возможность тренирующемуся отдохнуть или собраться с силами для дальнейшего подъема.
"Молот"
Еще один силовой тренажер – "молот", или "баба", напоминающий ручное приспособление для забивания свай (рис. 88). Здесь тоже используется покрышка: для детей – от легкового автомобиля, для взрослых – от грузового. В отличие от кольцевой штанги, она в данном случае насаживается в вертикальном положении и не на саму стойку, а на дополнительную трубу-втулку, скользящую по стойке. Последняя имеет внизу болт-ограничитель, не дающий втулке спускаться до земли. А в покрышке, как и для кольцевой гири, надо прорезать отверстия, позволяющие держаться руками за бортовое кольцо.
Описанных выше снарядов вполне достаточно для обеспечения занятий силовыми физкультурными упражнениями. Изготовление таких простейших конструкций доступно для значительной части населения, при этом не требуются существенные материальные затраты, хотя над их изготовлением потрудиться придется.
Все элементы снарядов желательно покрасить, лучше в разные светлые цвета, что будет способствовать повышению положительных эмоций занимающихся при выполнении физических упражнений.
Сани-ватрушка
Кататься на санях любят все малыши. Но стоит им чуть подрасти, и некоторые гордо заявляют: "Я уже не маленький, чтобы на саночках кататься!" Хотя, конечно, вряд ли кто-то из них устоит перед удовольствием скатиться с горки в вихре снежной пыли.
Что ж, есть неплохой способ справиться с маленькими гордецами к обоюдному удовольствию. Чтобы удивить своих детей, вам нужно сшить тюбинг, или попросту санки-ватрушку. Этот довольно простой надувной снаряд для катания с горки превратит зимние каникулы в сплошной праздник, который запомнится надолго!
Для изготовления подобных саней (фото 19) вам понадобятся: камера от колеса легкового автомобиля (достаточно № 13), причем обязательно от колес с толстым баллоном; кусок брезента; ПВХ-ткань для тентов; прочная трикотажная лента; отрезок кабеля телевизионной антенны; застежка-молния.
Сначала из ПВХ-ткани вырезают два круга размером, равным диаметру камеры плюс половина ее толщины. Поперек лицевой стороны одного из них – нижней части саней – пришивают полоску, в которую вставляют кусок антенного кабеля. Так получается ребро жесткости, позволяющее саням скользить ровно, без вращений. В середине другого круга (верхней части) пришивают будущее сиденье – кусок брезента диаметром 30–40 см (если брезента под рукой нет, берут спинку от старого рюкзака). По кромке заготовки вшивают молнию длиной 40–50 см.
Низ складывают с верхом наружными сторонами внутрь, приметывают в нескольких точках и прошивают по окружности. Выворачивают через отверстие с молнией. В результате этих действий получается прочный чехол для камеры.
Для уверенной езды на санях понадобятся ручки. Из обрезков ткани стачивают три узких чехольчика и протягивают внутрь наполнитель из пенистой резины. По краям двух заготовок пришивают кусочки ленты, которыми и крепят ручки к чехлу. Из третьей заготовки и той же узкой ленты делают ручку-тянучку тюбинга.
Остается только вставить внутрь автомобильную камеру и накачать ее. "Ватрушка" готова!
Летом на тюбинге можно кататься по воде, прицепив его к моторной лодке, или использовать его в качестве надувного матраса.
Внесезонный пневмокат
Скоростной спуск на санях с гор – увлекательнейший вид спорта и великолепный способ отдыха. Жаль, что доступно это удовольствие лишь в снежную зиму. Летом, весной и осенью о таком занятии приходится только мечтать. Впрочем, можно сделать и такой универсальный спортивный снаряд, который годится для катания с гор в любое время года. Тем более что не так уж это и сложно. Правда, сани тут нужны особые – пневматические.
Основу конструкции такого универсального спортивного снаряда должны составлять колеса большого диаметра с пневматиками сверхнизкого давления, которым нипочем ни кочки, ни мелкий кустарник, ни небольшие рытвины. Такие колеса великолепно зарекомендовали себя на пневмоходах – всесезонных вездеходах, которые одинаково успешно преодолевают и заснеженные, и заболоченные пространства. Однако если для спуска с гор проектировать трех– или четырехколесный экипаж традиционной схемы, то он превращается в нетранспортабельную телегу, на которой с горы еще как-то можно спуститься, но вот затащить ее наверх более чем проблематично. Если же отрешиться от традиций и канонов и признать, что меньше одного колеса на экипаж для спуска с гор поставить не удастся, то оптимальной его схемой становится одноколесная, с расположением спортсмена… внутри колеса.
Взгляните на рис. 89. Как видите, основу пневмосаней составляет камера большого диаметра от трактора или грузовика. Ее внешний диаметр в накачанном состоянии составляет около 1,5 м. Сани вместе со спортсменом перекатываются внутри колеса по двум кольцевым рельсам, которые в совокупности с двенадцатью ложементами образуют своеобразную ступицу. Кольцевые рельсы сгибаются из дюралюминиевой трубы диаметром 25×2,5 мм. Внутренний диаметр такого кольца зависит от размеров пневмокамеры. Так, при ее наружном диаметре 1500 мм внутренний диаметр кольцевого рельса составит 920 мм, соответственно длина одной трубы-заготовки должна быть около 3 м.