Всего за 59 руб. Купить полную версию

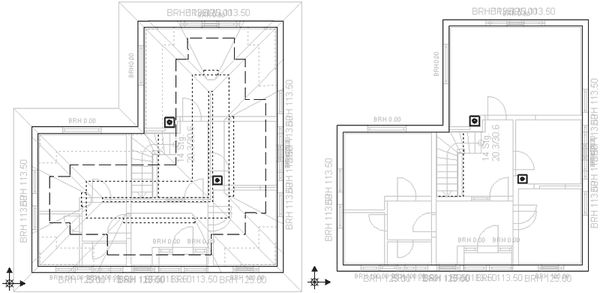
Рис. 1.7. Отображение плана: режим, используемый в системе ArCon (слева), и режим правильного архитектурного представления (справа)
По умолчанию режим правильного архитектурного (чертежного) представления отключен.
Внимание!
В режиме правильного архитектурного представления нельзя редактировать (в частности, с помощью перетаскивания точек кнопкой мыши) или выделять объекты ArCon, размещенные на плане.
• Точки вкл./выкл.
![]()
– управляет отображением сетки из точек на изображении плана. К узлам (точкам) данной сетки можно привязываться при построении стен или фиксации различных объектов на плане.
• Вспомогательные линии вкл./выкл.
![]()
– с помощью этой кнопки-переключателя на плане отображаются или скрываются линии объектов вспомогательной геометрии. Вспомогательные линии служат для создания эскиза плана или отдельных его частей с целью последующей привязки к ним при построении стен и создании других материальных объектов. Команды для построения вспомогательной геометрии на чертеже собраны в специальной группе на вертикальной панели инструментов.
• Слои вкл./выкл.
![]()
– управление отображением слоев на плане.
• Ландшафт показать/скрыть
![]()
– включить или отключить отображение элементов рельефа на плане или в окне трехмерного представления. Следует отметить, что, даже если в проекте указаны отметки высот рельефа и заданы текстуры (трава, грунт) для окружающей коттедж площадки, включение данной функции в графическом режиме практически не влияет на план. Напротив, в режиме дизайна различия между отображением трехмерной сцены весьма заметны (рис. 1.8).

Рис. 1.8. Трехмерное представление проекта с включенным (слева) и отключенным (справа) отображением ландшафта
Совет
Отключение ландшафта позволит сделать видимыми подвальные помещения или этажи построенного здания. При включенном отображении ландшафта их не видно.
• Штриховку стен вкл./выкл.
![]()
– предоставляет возможность показать или скрыть штриховку стен на плане в режиме конструирования.
• Показать внутреннюю обстановку
![]()
– по умолчанию всегда нажата. Ее отключение убирает с плана все объекты интерьера и экстерьера, оставляя только здание (стены, окна, лестницы и т. п.). Действие данной команды распространяется на режим дизайна, позволяя исключать из расчетов сцены трехмерные модели элементов интерьера и экстерьера.
• Поверхность крыш вкл./выкл.
![]()
– управляет отображением контуров крыши на плане здания. Если кнопка нажата, то контуры скатов и коньков крыши обрисовываются на плане пунктиром, в противном случае созданная крыша не отображается (рис. 1.9). Отключение отображения поверхности крыши улучшает представление чертежа здания, облегчая редактирование или добавление в план объектов.

Рис. 1.9. Здание с включенным (слева) и отключенным (справа) отображением крыши
Данная функция, как и предыдущая, распространяется на режим дизайна.
• Деревянная конструкция вкл./выкл.
![]()
– показывает или скрывает деревянные конструкции в здании, если такие используются в проекте.
• Надписи вкл./выкл.
![]()
– отвечает за отображение текстовых подписей на чертеже здания.
• Размеры вкл./выкл.
![]()
– отображение размеров. Размеры могут создаваться автоматически (например, при построении стены или при фиксации объекта в плане) или выборочно проставляться вручную с помощью специальных команд. В режиме дизайна эта кнопка неактивна, а размеры трехмерных элементов не отображаются.
• Предотвращение конфликтов
![]()
– во включенном состоянии кнопка обеспечивает контроль взаимных соударений объектов или соударений между объектом и стеной при добавлении новых объектов и перемещении или редактировании существующих.
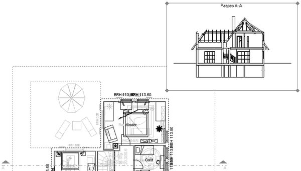
• Разрезы показать/скрыть
![]()
– предназначена для демонстрации сечений здания. Перед включением отображения разрезов их необходимо создать с помощью команды Определить разрез. Когда кнопка Разрезы показать/скрыть нажата, указанное сечение (их может быть несколько) отображается на плане в небольшой прямоугольной области, ограниченной тонкой красной линией с красными маркерами по углам (рис. 1.10). С помощью кнопки мыши эту область можно перетаскивать и размещать в любом месте текущего графического листа. Если кнопка Разрезы показать/скрыть не нажата, прямоугольная область с изображением сечения исчезнет, что не означает, что пропало само сечение.

Рис. 1.10. Разрез и его отображение на плане
Размеры данной прямоугольной области также можно изменять. Для этого подведите указатель к одному из маркеров в углах габаритного прямоугольника разреза и, нажав кнопку мыши, перетащите его.
Следующий элемент управления горизонтальной панели инструментов – это раскрывающийся список этажей активного здания на плане. Выбранный в списке элемент отвечает активному этажу в здании.
Примечание
Элементы активного этажа (планировка, интерьер, надписи) отображаются черным цветом (выделены), а элементы неактивных этажей– серым.
В крайней правой части горизонтальной панели инструментов находятся две кнопки – 3D-окно просмотра
![]()
и Помощь
![]()
Первая команда запускает немодальное окно, в котором отображается трехмерная модель здания на текущем этапе выполнения. Это окно перемещается в пределах главного окна программы и не мешает работе с планом, оставаясь поверх других окон. Изображение в этом окне можно вращать, приближать или отдалять, но нельзя масштабировать. Данное окно служит только для лучшего визуального представления изменений в плане при его разработке или редактировании. Вторая кнопка предназначена для вызова справочной системы программы ArCon. Вы можете воспользоваться ей, если знаете немецкий язык.
При переходе в режим дизайна набор элементов управления горизонтальной панели инструментов не изменяется, однако отдельные кнопки становятся недоступными (Вспомогательные линии вкл./выкл., Штриховку стен вкл./выкл., Надписи вкл./выкл., Размеры вкл./выкл., Разрезы показать/скрыть и пр.). В режиме дизайна появляется еще одна горизонтальная панель – панель управления представлением трехмерного изображения (рис. 1.11). Подробно о содержащихся на ней элементах управления будет рассказано далее при описании работы в режиме дизайна.