
Рис. 1.71. Элементы управления вкладки Принятие окна Новый этаж
Суть настроек на данной вкладке в том, чтобы вы могли выбрать, что и у какого этажа заимствовать в создаваемый. Если вы строите дом с одинаковой планировкой, окнами и дверьми на всех этажах, достаточно скопировать один из этажей, принятый в качестве базового. В других случаях можно указать, что именно переносить из базового этажа в создаваемый.
В раскрывающемся списке Источники содержится перечень всех этажей здания. Здесь можно выбрать, какой этаж использовать в качестве базового. По умолчанию в этом списке выбран актуальный этаж текущего здания (подразумевается, что вы будете создавать этаж, подобный тому, для которого выполнялась команда Этаж → Новый этаж поверх или Этаж → Новый этаж поверх актуального). Будьте внимательны, поскольку после выбора этажа-источника и построения на его основе нового вы не сможете заменить базовый этаж другим. Чтобы создать на этом же уровне новый этаж, основываясь на другом, придется предварительно удалять существующий этаж и только потом строить новый.
В области Принимать устанавливается параметр заимствования элементов базового этажа для нового.
• При установке переключателя в положение Ничего вы отключите возможность принятия элементов с этажа-источника. В данном случае новый этаж создается пустым – без стен, дверей, окон и объектов интерьера. Данную возможность удобно применять, когда геометрия внешних стен и планировка нового этажа кардинально отличаются от аналогичных у базового. При выборе этого варианта придется создавать все заново – внешние стены, комнаты, окна и двери, как это было сделано для первого этажа в предыдущем примере. Зато, отключив заимствование параметров какого-либо этажа, можно создавать здания произвольной конфигурации.
Примечание
Построение нового этажа без заимствования элементов этажа-источника не налагает ограничений на размеры и конфигурацию нового. Это означает, что можно строить новый этаж нависающим над нижним или меньшим нижнего этажа (дом по принципу ступенчатой башни). Однако следует подумать, насколько устойчивы будут такие конструкции в реальности.
• Весь этаж – реализует возможность полного копирования этажа-источника. Новый этаж будет сформирован точно с такими стенами, окнами, дверьми, элементами интерьера и экстерьера.
• Только план – способ, при котором с базового этажа заимствуются только стены. Это означает, что планировка верхнего этажа полностью повторит нижний, но двери, окна и прочие объекты можно создать другие. Этот способ предлагается по умолчанию, однако использовать его стоит, только когда вы точно знаете, что размещение окон и дверей нового этажа будет отличаться от источника. В противном случае лучше установить переключатель в положение Весь этаж. При необходимости вы всегда сможете отредактировать размещение, а также внешний вид дверей и окон с помощью двойного щелчка кнопкой мыши. Подобное редактирование объектов возможно в режиме конструирования и режиме дизайна.
• План с – активирует флажки, которые позволяют проводить более тонкую настройку объектов, заимствуемых из базового этажа. Можно указать на необходимость копирования в новый этаж дверей, окон, лестниц, опор, дымоходов и даже текстовых надписей на чертеже. По умолчанию установлено четыре флажка, фиксирующих перенос в новый этаж стен, окон, перекрытий и виртуальных стен этажа-источника.
Создадим верхний этаж с произвольной конфигурацией стен.
1. Выполните команду Этаж → Новый этаж поверх. На вкладке Общие появившегося окна ничего не изменяйте и перейдите на вкладку Принятие. В раскрывающемся списке Источники есть только один элемент – Первый этаж. В области Принимать установите переключатель в положение Ничего, после чего нажмите кнопку ОК.
В результате выполненных действий заметных изменений в плане не произошло, а трехмерная модель не поменялась вообще. О добавлении нового этажа свидетельствует только новый пункт 1. Верхний этаж в раскрывающемся списке этажей на горизонтальной панели инструментов, а также то, что все элементы нижнего этажа на плане отобразились светло-серым цветом. Этаж существует, на данный момент является активным, но в нем еще ничего не создано.
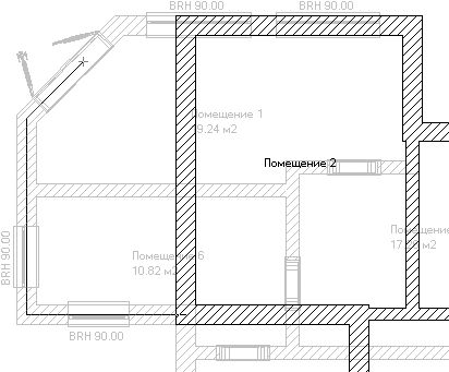
2. Выполните команду Наружная стена (толщина 30 см) из группы кнопок для построения стен на вертикальной панели инструментов. На дополнительной вертикальной панели инструментов активируйте способ построения Непрерывный ввод стен. После детального описания постройки внешних стен первого этажа вам будет нетрудно, используя привязки к характерным точкам стен, построить план верхнего этажа (рис. 1.72). Для этого достаточно последовательно щелкать кнопкой мыши на вершинах многоугольника, описывающего контур внешних стен.

Рис. 1.72. Контур внешних стен второго этажа
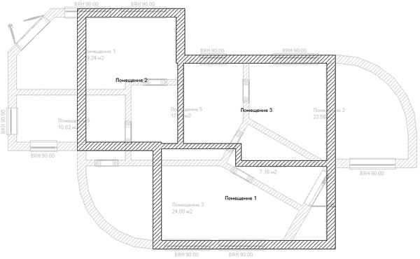
3. Следующим шагом построения будет разбивка плана этажа на комнаты. Выполните команду Несущая стена (толщина 24 см) и перейдите в режим Установить отдельную стену. Разбейте помещение второго этажа на три комнаты (рис. 1.73).

Рис. 1.73. Разбивка второго этажа на комнаты
Если какая-либо из стен размещена неточно, ее можно удалить и построить заново. Для удаления необходимо выделить стену (она подсветится красным) и нажать клавишу Delete. Для удаления последней созданной стены достаточно нажать сочетание клавиш Ctrl+Z.
Для редактирования стен в программе есть набор специальных команд. Они становятся доступны на дополнительной вертикальной панели инструментов при выделении любой стены на плане (рис. 1.74).
![]()
Рис. 1.74. Команды редактирования стен
Добавим перила на террасы второго этажа.
1. Выполните команду Установить перила
![]()
Убедитесь, что на дополнительной вертикальной панели инструментов установлен способ построения перил Перила по многоугольной линии
![]()
2. Последовательно щелкая кнопкой мыши, укажите вершины линии, вдоль которой будут проложены перила (рис. 1.75). При этом следует привязываться к точкам пересечения стен нижнего этажа – так перила террасы пройдут точно по контуру его стен.

Рис. 1.75. Задание направляющей для перил
Для завершения контура перил нажмите клавишу Esc. Появится окно настройки параметров перил (рис. 1.76), содержащее множество настроек.

Рис. 1.76. Окно настройки перил
На вкладке Общие находится список Каталог, в котором представлен перечень типов перил. Чтобы выбрать тип, необходимо дважды щелкнуть кнопкой мыши на требуемом элементе. На экране появится запрос, требующий подтверждения изменения структуры перил, на который следует ответить утвердительно. После этого в окне просмотра отобразятся перила текущей конфигурации и выбранного типа. В области Настройки собраны кнопки, позволяющие вызывать окна настроек двух– и трехмерного отображения перил, способов выравнивания отдельных стоек и панелей вдоль указанной направляющей.
Остальные вкладки данного окна предназначены для более тонкой настройки отдельных элементов перил – стоек, поручней, креплений и пр. В большинстве случаев изменять эти параметры не приходится, поэтому не будем останавливаться на них.
Для завершения создания перил нажмите кнопку ОК.
3. Выберите любой тип перил, оставьте остальные настройки по умолчанию и нажмите ОК. На террасе второго этажа появится ограждение (рис. 1.77).

Рис. 1.77. Перила в трехмерной модели здания
4. Выполните команду Установить перила еще раз и создайте перила на втором этаже в правой части здания возле комнаты Помещение 3 (рис. 1.78). При построении привязывайтесь к характерным точкам круговой стены (как вы помните, круговая стена состоит из шести прямолинейных участков, поэтому точками привязки являются крайние точки этих стен). Завершите выполнение команды.