...
Enter an option [Ucs/Ortho/Auxiliary/Section]: O – орторежим
Specify side of viewport to project: – указать левую границу видового экрана главного вида
Specify view center: – указать центр вида
Specify view center <specify viewport>: – нажать клавишу Enter
Specify first corner of viewport: – указать первый угол видового экрана
Specify opposite corner of viewport: – указать второй угол видового экрана
Enter view name: Profi l – ввести имя формируемого вида

Рис. 21.2. Видовые экраны с проекциями детали
4) получить разрез детали:
...
Enter an option [Ucs/Ortho/Auxiliary/Section]: S – сечение
Specify first point of cutting plane: CEN – указать на профильной проекции первую точку режущей плоскости с объектной привязкой к центру верхнего основания цилиндра
Specify second point of cutting plane: CEN – указать на профильной проекции вторую точку режущей плоскости с объектной привязкой к центру нижнего основания цилиндра
Specify side to view from: – указать слева на профильной проекции точку направления взгляда
Enter view scale <0.5>: – нажать клавишу Enter
Specify view center: – указать центр вида
Specify view center <specify viewport>: – нажать клавишу Enter
Specify first corner of viewport: – указать первый угол видового экрана
Specify opposite corner of viewport: – указать второй угол видового экрана
Enter view name: Section – ввести имя формируемого вида
Enter an option [Ucs/Ortho/Auxiliary/Section]: – для завершения работы команды нажать клавишу Enter
18. Всем слоям с невидимыми линиями (< имя вида >- HID ) установить тип линии HIDDEN. Выполнить команду SOLDRAW, вызываемую из падающего меню Draw → Modeling → Setup → Drawing. В ответ на последовательность запросов Select objects: следует указать рамки всех видовых экранов.
19. Отключить слой VPORTS, в котором находятся рамки видовых экранов.
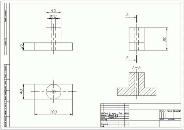
20. Находясь в пространстве листа, провести на проекциях детали осевые линии.
21. Проставить на проекциях детали размеры в слоях с именами < имя вида >- DIM (рис. 21.3).

Рис. 21.3. Чертеж детали
22. Оформить недостающие обозначения на чертеже и сохранить файл с рисунком.
Глава 22 Определение трехмерных видов
Установка направления взгляда
Установка вида в плане
Установка ортогональных и аксонометрических видов
Интерактивное управление точкой взгляда
Свободная орбита
Динамическое вращение трехмерной модели
Регулировка расстояния
Шарнир
Обход чертежа
Облет чертежа
Параметры обхода и облета
Камера
Анимация перемещений при обходе и облете
Использование AutoCAD для создания трехмерных моделей и их изображений имеет множество преимуществ по сравнению с применением программы в двумерном моделировании, но вместе с тем требует несколько иного подхода. Работа в трехмерном пространстве представляет собой сочетание рисования, редактирования и установки видов и видовых экранов для изображения модели. Следовательно, от пользователя требуется умение сформировать корректную трехмерную модель, работать с различными трехмерными системами координат, правильно задавать пользовательские системы координат, а также корректно устанавливать необходимые виды трехмерных моделей.
При построении трехмерной модели приходится работать более чем с одним видом объекта. Возможно, что изображение объекта будет достаточно информативным на одном виде и нечитаемым на другом. В любом случае при работе с трехмерными объектами следует установить несколько видовых экранов, например один – с видом в плане, другой – с видом слева, дополнительный – с аксонометрическим видом.
Чтобы повысить удобство работы, для каждого видового экрана можно задать и сохранить отдельную ПСК. Независимо от того, что происходит с ПСК на текущем видовом экране, системы координат на остальных видовых экранах остаются неизменными и при переключении между экранами не происходит потери информации о ПСК каждого из них.
Сохранением ПСК для каждого видового экрана управляет системная переменная UCSVP. На видовых экранах, где UCSVP равна 1, ПСК, использованная непосредственно перед переходом на другой видовой экран, запоминается; при возврате происходит ее восстановление. Если системная переменная UCSVP установлена в 0 для некоторого видового экрана, то его ПСК всегда совпадает с ПСК текущего активного видового экрана.
Находясь в пространстве модели, можно рассматривать сформированные объекты с любой точки зрения. Точкой зрения (видом) называется направление, задаваемое из трехмерной точки пространства на начало системы координат. Установка направления взгляда производится в начале работы с моделью или при необходимости рассмотреть завершенную модель из какой-либо конкретной точки. AutoCAD позволяет взглянуть на рисунок из любой точки пространства, даже изнутри изображаемого объекта. Перемещая точку зрения в нужную позицию, удобнее формировать объекты, редактировать их, а также получать изображения со скрытыми линиями, закрашенные и тонированные. Можно получать виды в ортогональной и перспективной проекциях.
С помощью инструментов трехмерного просмотра и навигации можно перемещаться по чертежу, настраивать камеру на определенный вид и создавать анимации для обеспечения параллельного доступа к своему проекту другим пользователям. Можно перемещаться по всей трехмерной модели в режиме движения по кругу, разворота, обхода или облета, настраивать камеру, создавать анимацию предварительного просмотра и записывать анимации траектории перемещения, которые можно передавать другим пользователям для визуального ознакомления с проектом.
Установка направления взгляда
Команда VPOINT устанавливает точку зрения в текущей системе координат и может использоваться для фиксации трехмерного вида относительно ПСК. Системная переменная WORLDVIEW определяет, какая система координат будет использована для данного вида в качестве базовой. При WORLDVIEW, равной 1, виды строятся в МСК, при равной 0 – в текущей ПСК.
Команда VPOINT выдает запрос:
...
Current view direction: VIEWDIR=0.0000,0.0000,1.0000 – текущее направление взгляда
Specify a view point or [Rotate] <display compass and tripod>: – задать точку зрения
В ответ вводится точка зрения, представленная как соотношение координатных отрезков (координат требуемой точки зрения в пространстве). Например, точка зрения 0,0,1 вызывает построение вида в плане, точка 1,1,1 – аксонометрического вида.
При использовании ключа поворота Rotate выдаются запросы:
...
Current view direction: VIEWDIR=0.0000,0.0000,1.0000 – текущее направление взгляда
Specify a view point or [Rotate] <display compass and tripod>: R – переход в режим указания точки зрения поворотом
Enter angle in XY plane from X axis <default>: – указать угол в плоскости XY относительно оси X
Enter angle from XY plane <default>: – указать угол с плоскостью XY
Выполняется регенерация модели.
В этом случае новая точка зрения определяется с помощью двух углов, один из которых задан в плоскости XY относительно оси X , а другой – относительно плоскости XY вверх (рис. 22.1).