Простановка размеров
Размеры показывают геометрические величины объектов, расстояния и углы между ними, координаты отдельных точек. В AutoCAD используется 11 видов размеров, которые можно разделить на пять основных типов: линейные , радиальные , угловые , ординатные и длина дуги . Линейные размеры, в свою очередь, делятся на горизонтальные, вертикальные, параллельные, повернутые, ординатные, базовые и размерные цепи (рис. 11.9–11.13). Ниже будут приведены простые примеры нанесения различных типов размеров.

Рис. 11.9. Горизонтальный, вертикальный и параллельный размеры

Рис. 11.10. Базовые размеры

Рис. 11.11. Размерные цепи

Рис. 11.12. Радиальные размеры

Рис. 11.13. Угловые размеры
Команды простановки размеров находятся в падающем меню Dimension. Для удобства можно воспользоваться пиктограммами на одноименной панели инструментов (рис. 11.14).

Рис. 11.14. Падающее меню и панель инструментов Dimension
В изображения размеров входят следующие составные элементы:
• размерная линия – линия со стрелками на концах, выполненная параллельно соответствующему измерению. Как правило, размерные линии помещаются между выносными. Если на короткой размерной линии не хватает места, размерные стрелки или текст размещаются снаружи в зависимости от настроек размерного стиля. Для угловых размеров размерной линией является дуга;
• размерные стрелки – стрелки, засечки или произвольный маркер, определяемый как блок, для обозначения концов размерной линии;
• выносные линии проводятся от объекта к размерной линии. Могут быть построены перпендикулярно ей или быть наклонными. Формируются только для линейных и угловых размеров (используются, если размерная линия находится вне объекта, на котором проставляется размер);
• размерный текст – текстовая строка, содержащая величину размера и другую информацию (например, обозначения диаметра, радиуса, допуска). Это необязательный элемент, то есть его вывод на рисунок можно подавить. Есть возможность принять размер, автоматически вычисленный AutoCAD, или заменить его другим текстом. Если принимается текст по умолчанию, к нему можно автоматически добавить допуски и ввести префикс и суффикс;
• выноски используются, если размерный текст невозможно расположить рядом с объектом;
• маркер центра – небольшой крестик, отмечающий центр окружности или дуги;
• осевые линии – линии с разрывом (штрихпунктирные), пересекающиеся в центре окружности или дуги и делящие ее на квадранты.
Все линии, стрелки, дуги и элементы текста, составляющие размер, будут рассматриваться как один геометрический примитив, если установлен режим ассоциативной простановки размеров. Существует три типа ассоциативности между объектами и размерами:
• ассоциативные размеры – автоматически изменяют свое положение, ориентацию и значения величин при редактировании геометрических объектов, на которые проставлены эти размеры. Размеры в пространстве листа могут ассоциироваться с объектами в пространстве модели. При этом системной переменной DIMASSOC присвоено значение 2;
• неассоциативные размеры – при изменении объектов, на которые проставлены эти размеры, неассоциативные размеры не изменяются. Системной переменной DIMASSOC присвоено значение 1;
• расчлененные размеры – представляют собой не единый геометрический примитив, а наборы отдельных объектов: линии, стрелки, дуги и элементы текста, составляющие размер. Для системной переменной DIMASSOC установлено значение 0.
Ассоциативные размеры не могут быть применены для штриховки, мультилинии, двумерных фигур и объектов с ненулевой трехмерной высотой. А также не сохраняется ассоциативность между размером и трехмерным телом после изменения этого объекта.
Линейные размеры
AutoCAD обеспечивает несколько видов простановки линейных размеров, отличающихся углом, под которым проводится размерная линия.
![]()
Команда DIMLINEAR позволяет создавать горизонтальный , вертикальный или повернутый размеры. Команда вызывается из падающего меню Dimension → Linear или щелчком на пиктограмме Linear на панели инструментов Dimension.
Запросы команды DIMLINEAR:
...
Specify first extension line origin or <select object>: – указать начало первой выносной линии
Specify second extension line origin: – указать начало второй выносной линии
Specify dimension line location or [Mtext/Text/Angle/Horizontal/Vertical/Rotated]: – указать положение размерной линии
Dimension text = измеренное значение
Если на первый запрос нажать клавишу Enter, команда DIMLINEAR выдает следующие запросы:
...
Specify first extension line origin or <select object>: – нажать клавишу Enter для указания объекта
Select object to dimension: – выбрать объект для нанесения размера
Specify dimension line location or [Mtext/Text/Angle/Horizontal/Vertical/Rotated]: – указать положение размерной линии
Dimension text = измеренное значение
Ключи команды DIMLINEAR:
• Mtext – позволяет редактировать размерный текст в редакторе многострочного текста. Можно полностью изменить текст или сохранить измеренное значение с помощью угловых скобок <> и при необходимости добавить любой текст до и после скобок;
• Text – позволяет редактировать размерный текст. При этом выдается запрос:
...
Enter dimension text <измеренное значение>: – ввести необходимую текстовую строку
• Angle – позволяет задать угол поворота размерного текста. При этом выдается запрос:
...
Specify angle of dimension text: – указать угол поворота размерного текста
• Horizontal – определяет горизонтальную ориентацию размера, отмеряет расстояние между двумя точками по оси X ;
• Vertical – определяет вертикальную ориентацию размера, отмеряет расстояние между двумя точками по оси Y ;
• Rotated – осуществляет поворот размерной и выносных линий, отмеряет расстояние между двумя точками вдоль заданного направления в текущей ПСК. При этом выдается запрос:
...
Specify angle of dimension line <0>: – указать угол поворота размерной линии
Пример. Простановка горизонтального размера
Проставьте горизонтальный размер прямоугольника (рис. 11.15).

Рис. 11.15. Простановка горизонтального размера
Запустите команду DIMLINEAR, вызвав ее из падающего меню Dimension → Linear или щелчком на пиктограмме Linear на панели инструментов Dimension. Ответьте на запросы:
...
_DIMLINEAR
Specify first extension line origin or <select object>: – укажите точку 1
Specify second extension line origin: – укажите точку 2
Specify dimension line location or [Mtext/Text/Angle/Horizontal/Vertical/Rotated]: – укажите точку 3
Dimension text = 200
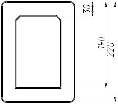
Пример. Простановка вертикального размера
Проставьте вертикальный размер прямоугольника (рис. 11.16).

Рис. 11.16. Простановка вертикального размера
Запустите команду DIMLINEAR, вызвав ее из падающего меню Dimension → Linear или щелчком на пиктограмме Linear на панели инструментов Dimension. Ответьте на запросы:
...
_DIMLINEAR
Specify first extension line origin or <select object>: – укажите точку 1
Specify second extension line origin: – укажите точку 2
Specify dimension line location or [Mtext/Text/Angle/Horizontal/Vertical/Rotated]: – укажите точку 3
Dimension text = 80
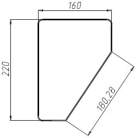
Пример. Простановка повернутого размера
Проставьте размер под заданным углом (рис. 11.17).