Всего за 104.9 руб. Купить полную версию
Глава 10
Команды оформления чертежей
Штриховка
![]()
Команда ВНАТСН, формирующая ассоциативную штриховку, вызывается из падающего меню Draw ► Hatch... или щелчком на пиктограмме Hatch... на панели инструментов Draw. При обращении к команде ВНАТСН загружается диалоговое окно Hatch and Gradient, вкладка Hatch, показанное на рис. 10.1.

Рис. 10.1. Диалоговое окно штриховки
В диалоговом окне Hatch and Gradient на вкладке Hatch устанавливаются следующие параметры:
□ в области Type and pattern – тип и массив штриховки;
□ в области Angle and scale определяются: угол поворота образца штриховки, масштабный коэффициент и пр.;
□ в области Hatch origin определяется исходящая точка штриховки;
□ в области Boundaries производится определение контуров штриховки;
□ в области Options осуществляются следующие настройки: ассоциативности штриховки, создание отдельных штриховок, порядок прорисовки;
□ в области Islands определяются островки;
□ в области Boundary retention – сохранение контуров;
□ в области Boundary set определяется набор контуров;
□ в области Gap tolerance – определение допуска замкнутости в единицах чертежа;
□ в области Inherit options – наследование параметров;
□ кнопка Preview – просмотр образца перед завершением работы команды BHATCH;
□ кнопка Inherit Properties – копирование свойств.
Простановка размеров
Размеры показывают геометрические величины объектов, расстояния и углы между ними, координаты отдельных точек. В AutoCAD используется 11 видов размеров, которые можно разделить на пять основных типов: линейные, радиальные, угловые, ординатные и длина дуги (рис. 10.2-10.6). Линейные размеры, в свою очередь, делятся на горизонтальные, вертикальные, параллельные, повернутые, ординатные, базовые и размерные цепи.
Ниже будут приведены простые примеры нанесения различных типов размеров.
Команды простановки размеров находятся в меню Dimension. Можно также воспользоваться пиктограммами на одноименной панели инструментов (рис. 10.7).
Все линии, стрелки, дуги и элементы текста, составляющие размер, будут рассматриваться как один геометрический примитив, если установлен режим ассоциативной простановки размеров.

Рис. 10.2. Горизонтальный, вертикальный и параллельный размеры

Рис. 10.3. Базовые размеры

Рис. 10.4. Размерные цепи

Рис. 10.5. Радиальные размеры

Рис. 10.6. Угловые размеры

Рис. 10.7. Падающее меню и панель инструментов Dimension
Линейные размеры
AutoCAD обеспечивает несколько видов простановки линейных размеров, отличающихся углом, под которым проводится размерная линия.
![]()
Команда DIMLINEAR позволяет создавать горизонтальный, вертикальный или повернутый размеры. Команда вызывается из падающего меню Dimension ► Linear или щелчком на пиктограмме Linear на панели инструментов Dimension.
Запросы команды DIMLINEAR:
Specify first extension line origin or <select object>: – указать начало первой выносной линии
Specify second extension line origin: – указать начало второй выносной линии
Specify dimension line location or [Mtext/Text/Angle/Horizontal/Vertical/Rotated]: – указать положение размерной линии
Dimension text = измеренное значение
Если на первый запрос нажать клавишу Enter, команда DIMLINEAR выдает следующие запросы:
Specify first extension line origin or <select object>: – нажать клавишу Enter для указания объекта
Select object to dimension: – выбрать объект для нанесения размера
Specify dimension line location or [Mtext/Text/Angle/Horizontal/Vertical/Rotated]: – указать положение размерной линии
Dimension text = измеренное значение
Ключи команды DIMLINEAR:
□ Mtext – позволяет редактировать размерный текст в редакторе многострочного текста;
□ Text – позволяет редактировать размерный текст;
□ Angle – позволяет задать угол поворота размерного текста;
□ Horizontal – определяет горизонтальную ориентацию размера, отмеряет расстояние между двумя точками по оси X;
□ Vertical – определяет вертикальную ориентацию размера, отмеряет расстояние между двумя точками по оси Y;
□ Rotated – осуществляет поворот размерной и выносных линий, отмеряет расстояние между двумя точками вдоль заданного направления в текущей ПСК.
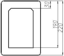
Пример. Простановка горизонтального размера
Проставьте горизонтальный размер прямоугольника, например, как изображено на рис. 10.8.
Запустите команду DIMLINEAR, вызвав ее из меню Dimension ► Linear или щелчком на пиктограмме Linear на панели инструментов Dimension. Ответьте на запросы:
_DIMLINEAR
Specify first extension line origin or <select object>: – укажите точку 1
Specify second extension line origin: – укажите точку 2
Specify dimension line location or [Mtext/Text/Angle/Horizontal/Vertical/Rotated]: – укажите точку 3
Dimension text = 200

Рис. 10.8. Простановка горизонтального размера
Параллельный размер
![]()
С помощью команды DIMALIGNED создается размер, параллельный измеряемой линии объекта; это позволяет выровнять размерную линию по объекту. Размер создается подобно горизонтальному, вертикальному и повернутому, при этом размерная линия расположена параллельно прямой, проходящей через размерные точки. Команда вызывается из падающего меню Dimension ► Aligned или щелчком на пиктограмме Aligned на панели инструментов Dimension.
Запросы команды DIMALIGNED:
Specify first extension line origin or <select object>: – указать начало первой выносной линии
Specify second extension line origin: – указать начало второй выносной линии
Specify dimension line location or [Mtext/Text/Angle]: – указать положение размерной линии
Dimension text = измеренное значение
Пример. Простановка параллельного размера
Проставьте размер, параллельный измеряемой линии объекта (рис. 10.9).
Запустите команду DIMALIGNED, вызвав ее из меню Dimension ► Aligned или щелчком на пиктограмме Aligned на панели инструментов Dimension. Ответьте на запросы:
_DIMALIGNED
Specify first extension line origin or <select object>: – укажите точку 1
Specify second extension line origin: – укажите точку 2
Specify dimension line location or [Mtext/Text/Angle]: – укажите точку 3
Dimension text = 223.61
Длина дуги
![]()
С помощью команды DIMARC создается размер длины дуги, указывающий расстояние вдоль дуги или дугового сегмента полилинии (рис. 10.10). Чтобы эти размеры отличались от линейных и угловых, для размеров длины дуги по умолчанию показан символ дуги. Команда вызывается из меню Dimension ► Arc Length или щелчком на пиктограмме Arc Length на панели инструментов Dimension.