Всего за 84.9 руб. Купить полную версию
Схемы разводки водопровода
В этом разделе речь пойдет об основных схемах разводки водопровода - коллекторной и тройниковой. На самом деле схем вроде бы существует больше, но все остальные либо являются вариантами указанных основных, либо сочетают в себе элементы обеих схем.
Коллекторная система требует большей длины труб, но способствует более равномерному распределению воды по водозаборным точкам.

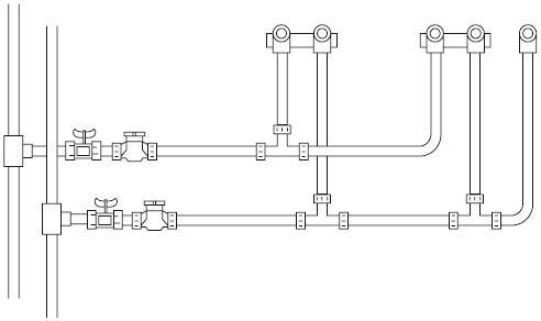
Коллекторная схема разводки водопровода
В квартире разводка водопроводных труб в любом случае начинается с вентиля или шарового крана. Согласно СНиП рабочее давление крана должно доходить до 60 атмосфер, а рабочая температура - до 150 °C. Этот же вентиль перекрывает воду в помещении в случае аварии или протечки водопровода.

Вентили
Следующим элементом водопроводной системы является фильтр-"грязевик", который применяется, если вода не соответствует стандартам качества. Обратите внимание, что он не имеет ничего общего с очищающими фильтрами для питьевой воды, которые часто устанавливаются на кухне! "Грязевик" очищает воду от самых грубых примесей, после чего эту воду уже можно фильтровать при помощи других фильтров, в том числе и для питьевой воды.
После "грязевика", как правило, устанавливаются счетчики горячей и холодной воды. Ну а затем фильтры более тонкой очистки, пропускающие частицы размером менее 100 мкм.

Счетчик для воды

Фильтр тонкой очистки
Далее в системе устанавливается редуктор давления - в том случае, если давление водопровода может превышать предельные значения подключенного к этому водопроводу оборудования. Мы уже говорили о том. что максимальные значения давления можно узнать в ЖЭКе, после чего редуктор устанавливается на максимальную допустимую для нас (то есть наших приборов) величину. Если давление превысит эту цифру, то вода будет "стравливаться" через отверстия редуктора. Для этих целей необходимо предусмотреть связь редуктора с канализацией.
Последней устанавливается наиболее важная часть системы - коллектор, который помогает равномерно распределять воду по водозаборным точкам. Обычно коллектор имеет 2–4 выхода, и если водозаборных точек в системе больше, то коллекторы можно соединять вместе.
Коллектор должен быть регулирующим, то есть иметь клапаны или вентили, отключающие-включающие подачу воды в отдельной водозаборной точке. Это очень пригодится в том случае, если этой точке вдруг понадобится ремонт - тогда вам не придется отключать воду полностью во всей системе.

Регулирующий коллектор с запорными клапанами
Это то, что касается коллекторной схемы разводки. Если же используется тройниковая схема разводки, тогда проводятся две магистрали - горячей и холодной воды. И уже от них идут ответвления к водозаборным точкам.
Первый недостаток такой схемы - неравномерность распределения воды. Второй - на каждую ветку схемы рекомендуется установить отдельный запорный кран, чтобы при ремонте не отключать каждую магистраль полностью. Но тем не менее в городских квартирах чаще всего используется именно этот вариант разводки, тогда как в загородных домах в ходу обычно коллекторная схема.

Тройниковая схема разводки водопровода
Как монтировать водопроводные трубы
Способы, позволяющие смонтировать водопроводные трубы, зависят от их материала. Выпускаются четыре основных вида труб: стальные, медные, трубы из металлопластика, а также гибкая сантехническая подводка.
Трубы из стали отличаются прочностью и надежностью. В городских квартирах вся внешняя проводка, связанная со стояками, должна монтироваться из стали, как и отопительные батареи и полотенцесушители. Обычные стальные трубы, в отличие от оцинкованных, не обладают достаточно высокой устойчивостью к ржавчине. Стальные трубы монтируют тремя способами: с помощью муфтового и сварного соединения, а также при помощи пресс-фитингов. Оцинкованные трубы с помощью сварки не соединяются, так как сварка разрушает защитный слой.
Медные трубы долговечны и надежны, но применяются редко из-за высокой цены. Они обладают высокой теплоотдачей, поэтому требуют хорошей теплоизоляции. Соединяют медные трубы резьбовыми фитингами, пресс-фитингами и при помощи капиллярной пайки.
Пластиковые трубы весьма удобны, но их использование ограничено по температуре (95 °C) и давлению (до 10 атмосфер). Соединяются такие трубы при помощи специальных фитингов.
Трубы из металлопластика используют во всех видах проводок в загородном доме и во внутренних проводках городской квартиры. Их минус - недостаточная прочность, если труба находится на открытом месте, поэтому монтаж труб из металлопластика в централизованных стояках выполняют только внутри стен.
Гибкая сантехническая подводка - это шланг в металлической обмотке. Выдерживая солидное рабочее давление, такая подводка неустойчива к внешним повреждениям. Ее обычно используют в пределах одного помещения для подсоединения раковины, стиральной либо посудомоечной машины, нагревателя.
Способы соединения труб
Монтаж водопроводных труб выполняется с помощью специальных соединительных элементов - фитингов. В местах изгиба трубопровода для соединения используется либо сгибание труб по соответствующей технологии, либо особые фитинги. При проводке труб применяются муфты, разветвители, переходники и другие виды фитингов.
Соединение с помощью муфты
При таком соединении участки трубы соединяются посредством резьбы. На одной из деталей одна резьба должна быть внешней, на другой - соответственно внутренней. Диаметры измеряются в дюймах. Существуют стандартные диаметры - 1/2, 3/4 дюйма. 1 дюйм. 1,5, 2 дюйма и др.
Резьба подразделяется на крепежную и трубную. Вторая наворачивается на трубы, а первая - на муфты и другие крепежные детали (так называемые фасонные части).
В случае, когда нужно соединить две жестко закрепленные части, используют разъемные соединения, или сгоны. Их принцип достаточно прост. На одной трубе наворачивается длинная резьба, что позволяет навернуть на нее муфту полностью и подвести к участку разрыва. После чего муфта сворачивается со сгона на вторую трубу с короткой резьбой.
Попробуем сделать это на практике.
1. На короткой резьбе делаем уплотнение, наворачиваем на нее льняную прядь и намазываем суриком или белилами.
2. На длинную резьбу наворачиваем контргайку, которая нужна для последующего закрепления муфты.
3. Наворачиваем муфту на длинную резьбу сразу после контргайки.
4. Сворачиваем муфту со сгона на трубу с короткой резьбой. Делаем уплотнение с помощью льняной пряди и наворачиваем контргайку таким образом, чтобы уплотнитель попал в фаску контргайки.
Для работы используются специальные трубные ключи - это двухрычажный ключ и ключ системы Волевача.
Соединения при помощи пресс-фитингов
Такие соединения надежны, недороги и нетрудны в исполнении. При работе с металлическими трубами они почти не используются, хотя пресс-фитинги бывают и для стальных, и для медных труб.

Сгон: а - неразъемное соединение при помощи муфты; б - разъемное соединение при помощи сгона: 1 - труба, 2 - муфта, 3 - уплотнитель, 4 - контргайка

Трубные ключи: а - двухрычажный; б - ключ системы Волевача
Что же представляют собой соединения при помощи пресс-фитингов?
Пресс-фитинг для металлических труб подобен обычной муфте, но оснащен герметизирующими кольцами. Труба вставляется в фитинг, затем герметизирующее кольцо обжимается специальными клещами. Фитинги для металлопластиковых труб несколько более сложны. О монтаже таких фитингов мы поговорим чуть ниже.