Вадим Алджанов - ИТ-архитектура от А до Я: Комплексное решение. Первое издание стр 12.

Книгу можно купить на ЛитРес.
Всего за 400 руб. Купить полную версию
Шрифт
Фон

Прохождения рядом или на верхних этажах от коммутационной комнаты водяных труб, труб отопления или канализации;

Использовать коммутационную комнату не по назначению;

Физические требования к офисным помещениям не определены.

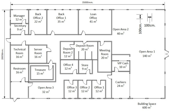
В качестве примера можно рассмотреть план небольшого объекта, филиала банка. На начальном этапе

в наличие может быть только общий план помещений.

На плане необходимо определить расположения серверной комнаты, отдельно стоящих коммуникационных шкафов и комнат, если есть необходимость. Кроме этого определить место для технического помещения. На данном этапе можно провести предварительное планирование количества и расположение рабочих точек, направление и расположение кабельных каналов и т п. Так при планировании максимального количества рабочих точек на общем плане берем одну полную рабочую точку на 24м2. Данные цифры берутся из стандартов охраны труда для рабочего места.

При проектировании объекта, на определённом этапе необходимо наличие дизайнерского плана, который включает в себя размещение мебели, рабочих мест сотрудников и т п. Как пример, на диаграмме показан дизайнерский план филиала банка. На основе данного плана можно уточнить количество рабочих точек и их расположение, направления прокладки кабельных каналов, расположения камер наблюдения и т п.

F02: Структурированная Кабельная Система (СКС)

Назначение

Структурированная Кабельная Система (СКС) представляет из себя пассивные элементы Локальной Вычислительной Сети (ЛВС) организации. При проектировании СКС необходимо руководствоваться, но не ограничиваться требованиями стандартов:

TIA-EIA-569-A, EIA/TIA-568С и TIA-942;

CENELEC EN 50173-х;

ISO/IEC IS 118012002;

Общие требования

В качестве элементов СКС можно выделить следующие:

Коммуникационные шкафы;

Патч-панели панели для терминирование кабеля в шкафах;

Кабель слаботочных систем;

Кабельные органайзеры;

Полки для размещения не «стандартного» оборудования;

Кабелеводы, короба для прокладки кабеля;

Модули и розетки рабочих точек;

Пач-корды для подключения рабочих точек и розеток, и активного оборудования, и патч-панелей;

Условно СКС можно разделить на две составляющие

вертикальная обеспечивает коммуникацию между этажами, отдельными объектами, центрами распределения и коммутации

горизонтальная обеспечивает коммуникацию рабочих точек.

Горизонтальная составляющая СКС включает в себя:

Центры распределения узлы агрегирования кабеля от рабочих точек.

Рабочие точки места подключения конечного оборудования.

Как правило в качестве основной среды передачи данных для вертикальной составляющей используется оптический кабель, а для горизонтальной составляющей «витая пара».

Кабель «витая пара» представляет из себя проводники скрученные попарно и между собой и различается по категориям, определяющим в основном полосу пропускания сигнала и как следствие скорость передачи данных. На данный момент является основным средством (средой) для построения СКС организации.

Рабочие точки могут представлять из себя набор розеток для подключения конечного оборудования. Например, одна рабочая точка может включать в себя одну розетку ИБП и одну розетку RJ-45.

По возможности всегда обеспечивайте избыточность рабочих точек, как правило порядка 30 процентов и более. Гораздо проще и дешевле обеспечить их прокладку сейчас, чем после введения здания в эксплуатацию. В таблице представлены основные типы кабеля «витая пара».

Кроме этого кабель «витая пара» различается по категориям в соответствии с характеристиками.

Таблица основных категорий кабеля.

Маркировка для одинаковой категории кабеля указывает на тип проводника, тип кабеля и экранирование. Общая маркировка кабеля (по стандарту ISO/ IEC 11801) представляет из себя вид «XX/YZZ» где XX обозначают общий экран кабеля, Y экран каждой пары, а ZZ тип скрутки проводов. Основные сокращения: TP (Twisted Pair) тип скрутки витая пара, U (Unshielded) защитный экран отсутствует, F (Foiled) в качестве экрана используется фольга и S (Shielded) в качестве экрана используется проволочная оплетка.

Кроме этого используются сокращения по оболочке кабеля, которая зависит от условий прокладки и эксплуатации кабеля. Чаще можно встретить следующие виды оболочки: PVC ПВХ-пластиката для внутреннего применения, PP полипропилен для внешней прокладки в основном для высоких температур до +140°С, PE полиэтилен для внешней прокладки,

FR огнестойкий может работать в открытом пламене заданное время: на сегодня стандартизированы огнестойкие оболочки на 30, 90 и 180 мин. Так же возможно использование сокращений LS Smoke пониженное дымовыделение при горении, ZH Zero Halogen изготовлен из материалов, которые при горении не выделяют отравляющие галогеновые газы, В Бронь чаще всего для брони используется стальная лента, которая обвивается вдоль кабеля c тросом. Трос нужен для натяжения кабеля между строениями.

Как пример, маркировка U/UTP 4 cat5e solid 24AWG LSZH переводится так: не экранированный кабель, содержит 4 пары по 2 жилы, 5 категории, solid жила однопроволочная, 24 AWG диаметр 0,51 мм, LSZH без галогенный кабель с низким дымовыделением. В качестве разъемов используются:

Ваша оценка очень важна

0
Шрифт
Фон

Помогите Вашим друзьям узнать о библиотеке

Скачать книгу

Если нет возможности читать онлайн, скачайте книгу файлом для электронной книжки и читайте офлайн.

fb2.zip txt txt.zip rtf.zip a4.pdf a6.pdf mobi.prc epub ios.epub fb3