Мельников Рафаил Михайлович - Цесаревич Часть I. Эскадренный броненосец. 1899-1906 гг. стр 17.

Шрифт
Фон

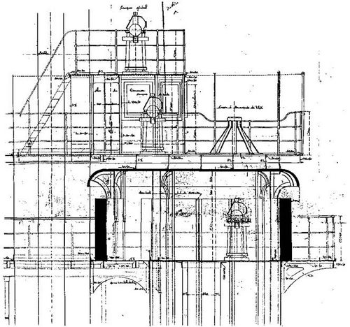
Броненосец Цесаревич (Продольный разрез боевой и ходовой рубок)

Велик был и перечень сопутствующих переделок перепланировка кают, отказ от ручного действия шпиля, установка дополнительного местного бронирования. Водоизмещение по расчетам фирмы грозило увеличиться на 77 т, осадка на 4,5 см, а дополнительные расходы на 220000 франков. Доклад МТК с обоснованием отказа от аппаратов управляющий морским министерством одобрил 20 октября 1899 г.

Такого рода мучительных изысканий потребовала и проблема установки сетевого заграждения. Фирма добросовестно перебрала все возможные варианты крепления башмаков для шестов сетей (выше или ниже палубой) способов закидывания шестов (в нос или корму), их крепления по-походному (горизонтально или вертикально) и укладки самих сетей (на особых полках или подвязывая под шесты). Но от необходимости отжига брони для крепления башмаков и других деталей крепления уйти не удавалось, что большой беды это не составляло (известны способы почти точечного местного отжига закаленной поверхности броневой плиты) струей газа или электрическими приборами. Такую проблему решали по другую сторону океана на заводе В. Крампа в Филадельфии. Но "Цесаревич" и здесь оказался на особом положении.

Убоявшись больших расходов по креплению шестов на невыразимо (по-французски) искривленной поверхности борта броненосца и выдвинутых фирмой требований о дополнительных платежах, склоняясь к самому простому решению, управляющий морским министерством вовсе высказался за отмену сетей на "Цесаревиче". Неравенство строившихся кораблей в средствах защиты от вполне реальных ночных атак миноносцев адмирала не смущало. Журнал МТК 17 от 31 марта 1900 г. оформивший желание управляющего, был доложен генерал-адмиралу. Как гласила резолюция П.П. Тыртова, "Его высочество приказал на броненосце "Цесаревич" и других, строящихся по тому же типу, сетевое ограждение не иметь, дабы не ослаблять брони сверлением дыр для прикрепления башмаков для бортовых шестов". Никаких тактических обоснований или обсуждения на совете адмиралов для этого решения не потребовалось.

Влияя из своего тулонского угла Средиземноморья на ход проектирования и постройки кораблей по его типу в России, "Цесаревич", в свою очередь, впитывал немало из опыта отечественного судостроения. Разными путями по запросам К.П. Боклевского, по инициативе МТК, по почте или передачей через бывавшего иногда в Петербурге И.К. Григоровича на завод для реализации передавались свод правил и рекомендации, методики расчетов, экземпляры контрактов и спецификаций оборудования и предметов вооружения, составленных с контрагентами Морского министерства, наконец, игравшие роль директивных документов журналы МТК.

Образцом для разработки системы вентиляции на кораблях, заказанных заводу "Форж

и Шантье", служили одобренные МТК чертежи системы вентиляции броненосца "Полтава". Ряд конструктивных решений (установка грузовой стрелы, устройства погрузки угля и др.) заимствовали из чертежей, полученных от строителя черноморского броненосца "Ростислав" М.К. Яковлева (он теперь строил в Петербурге броненосец "Орел"). В шпилевом устройстве учли опыт строившегося тогда же в Николаеве броненосца "Князь Потемкин-Таврический". Его чертежи вручили И.К. Григоровичу в МТК в декабре 1899 г. Последователем черноморского броненосца был "Цесаревич" и в применении гидравлического привода системы Броуна к золотникам паровой рулевой машины. Хорошо проверенный на пароходах Добровольного флота, он по примеру "Потемкина" был одобрен и для "Цесаревича".

Опыт "Бородино", наоборот, помог И.К. Григоровичу отказаться от первоначально предполагавшегося (в числе прочих французских неоправданных "архитектурных излишеств") по примеру броненосца "Карно" фальшборта в кормовой части. Его громоздкая конструкция в штормовую погоду служила бы лишь для улавливания и задержания на палубе огромных масс вкатывавшейся из-за борта воды. Взамен по примеру "Бородино" и с одобрения МТК установили традиционное леерное ограждение с устройствами укладки на палубу при стрельбе. Получили в Тулоне (или в местечке Тамарис, где жили члены комиссии) в январе 1900 г. и чертежи кормового якорного устройства, предусматривающегося для броненосца "Князь Потемкин-Таврический". Рекомендации МТК о применении на "Цесаревиче" такого устройства, весьма полезного в бою на якоре, осуществить, к сожалению, не успели.

Виновником проектного изменения оказался Главный командир Черноморского флота и портов вице-адмирал С.П. Тыртов (18391903). По мотивам, не поддающимся объяснению, он вдруг высказался против устройства уже готовившегося на черноморском броненосце к осуществлению в соответствии с одобренными МТК чертежами. Адмирал, словно ему не полагалось быть наследником славы побед Ушакова и Нахимова (флот при Синопе разгромил турок, стоя на шпринге) вдруг убоялся сложного маневра отдачи якоря с кормы. Это, видите ли, могло вызвать повреждение руля и гребных винтов.

Членам МТК оставалось только развести руками. Ведь совсем недавно 10 марта 1898 г. устройство было признано необходимым на кораблях "по тактическим соображениям". Высказало их "собрание флагманов и капитанов", среди которых был и С.П. Тыртов. Резолюцией от 17 апреля 1900 г. председатель МТК вице-адмирал И.М. Диков (также в прошлом черноморец), заметив, что отдача кормового якоря особенно нужна именно в Черном море, признал доводы Главного командира "не особенно вескими". "Там где нельзя отдавать кормовой якорь, не без сарказма заметил он, можно его и не отдавать, но иметь на всякий случай не мешает".

Ваша оценка очень важна

0
Шрифт
Фон

Помогите Вашим друзьям узнать о библиотеке