Лана Паршина - Страсти по Распутину. Убийство, которое изменило ход истории стр 4.

Шрифт
Фон

17 декабря Юсупов был у меня и говорил, что 16 декабря ночью к нему позвонил Распутин и предлагал ехать к цыганам, но князь ответил, что у него гости и ехать в этот день не может. Возвратившись к гостям после этого разговора по телефону, князь Юсупов им сказал: А знаете, кто ко мне звонил? Распутин. Вечером и ночью 16 декабря Распутина, по его словам, не видел».

Картину происшедшего дополнила и племянница Григория Распутина Анна Николаевна, дававшая показания подполковнику Попелю. Маленькое, но важное уточнение: Анна не приходилась родной племянницей «старцу», она была дочерью его двоюродного брата Николая Матвеевича Распутина. Тем не менее Григорий Ефимович заботился о ней как о родной и старался дать ей равные возможности со своими дочерьми.

Показания Анны Распутиной:

«Зовут меня Анна Николаевна Распутина, 17 лет от роду, вероисповедания православного. Звание мое кр. Тобольской г., Тюменского уезда, Покровской вол. и села. Проживаю Гороховая, д.  64, кв. 20.

16 декабря около часу мой дядя Григорий Ефимович возвратился из бани и лег спать. В этот день к дяде приходило немного людей, которые и раньше приходили. Часов в 10 вечера пришла полная блондинка, которую звали сестра Мария, хотя она и не сестра милосердия. В начале первого часу ночи дядя лег на кровать не раздеваясь. Я и постоянно живущая у нас Катя (Екатерина Ивановна Печеркина.  Прим. Л. П.) подошли к дяде и спросили его, почему он не раздевается. На это дядя ответил: Сегодня я пойду к Маленькому. После этого я легла спать и не слыхала, когда и с кем дядя уехал. Маленьким дядя называл Юсупова, который был у нас раза два-три.


Фасад дома по адресу Гороховая, 64. Под балконом, помеченным крестиком,  квартира Распутина.


На второй день в 8 утра я позвонила Марии Головиной и спросила ее, где дядя, так как он до сих пор не возвратился домой от Маленького. И попросила ее позвонить туда, ибо я не знала его телефона. Часов в 11 утра Головина приехала к нам и сказала, что она звонила Юсупову, но тот еще спал. Спустя так полчаса мы опять позвонили князю Юсупову, но оттуда ответили, что он уже выехал. Около 1212:30 кто-то позвонил к нам на квартиру и попросил пригласить Головину. Она подошла и стала говорить по-английски. С кем она говорила, мы не знаем, но полагаем, что это был Юсупов. Часа в 3 дня Головина уехала от нас. В 5 часов дня Головина подъехала с матерью, они были встревожены и плакали».

Интересная деталь! В деле появляется некая «сестра Мария», которая заходила к Распутину, пока его дочери были в гостях. Во многих детективах все крутится вокруг таинственной незнакомки: как говорят французы, «ищите женщину»! Быть может, это загадочная «сестра» уговорила Распутина поехать в ночь вместе с князем Юсуповым, пренебрегая правилами безопасности, учитывая, что он получал анонимные угрозы, которые даже вынудили чинуш из Департамента юстиции по приказу сверху выделить ему охрану? И уж совсем невероятной может считаться версия, по которой князь Феликс Юсупов, известный своими переодеваниями в женские одежды, пришел к Распутину в образе полноватой блондинки. Юсупов был известным enfant terrible светского общества. Так, однажды он явился в женском обличье даже в Лондонскую оперу. И привлек внимание Эдуарда VII, который решил проявить амурный интерес к «миловидной даме», подавая недвусмысленные знаки из королевской ложи.

В здании на Гороховой имелась своя швейцариха, говоря современным языком консьержка. Подполковник Попель решил опросить и ее, главный вопрос какие личности посещали Распутина за день до исчезновения. Надо отметить, что в обязанности швейцара входила не просто фиксация приходящих в дом людей, но и открывание гостям дверей в парадной.

Мария Васильевна работала в доме, как говорят, «на подхвате» с 16 лет. И лишь к 26 годам добилась более-менее непыльного места швейцара. Подполковник Попель сделал пометку в оригинале допроса Журавлевой, написав от руки: «неграмотная».

«Протокол от 18 декабря 1916 года допрашивал подполковник Попель.


Анна Распутина, дочь двоюродного брата Григория Ефимовича. «Старец» заботился о ней как о родной дочери.


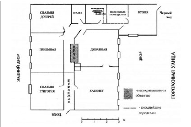
План квартиры, которую занимала семья Григория Ефимовича.


Журавлева Мария Васильевна от роду 28 лет, вероисповедания православного. Звание крестьянка Петроградской губернии, Гдовского уезда, Вяжищенской волости, д. Козлов Берег, состоит на должности швейцара д.  64 по Гороховой ул. Проживаю Гороховая, д.  64.

В доме на Гороховой служу 12 лет, и последние 2 года исполняю обязанности швейцара. 16 декабря я видела Григория Распутина только один раз, когда он в 3 часа дня возвратился из бани, куда он отправился по черному ходу. С утра он никого не принимал, так как был сильно пьян. Даже еще из бани возвратился не вполне в трезвом виде. С 3 часов до 12 ночи приходило не больше 7 человек, которые и раньше бывали. Только часов в 10 вечера приезжала одна дама, которую я раньше не видела, и пробыла у Распутина до 11 часов, ушла. Приметы этой дамы: блондинка лет 25, выше среднего роста, средней полноты. Одета была в пальто-клеш темно-коричневого цвета и такого же цвета, только немного темнее, ботинки, на голове у нее была черная шляпа без вуали. Когда я запирала в 12 часов парадную дверь, то Григорий Распутин был дома. Когда и с кем именно он вышел из дому не знаю, так как прошел по черной лестнице».

Вот это поворот! По словам швейцарихи, Распутин за день до своего исчезновения был пьян! Как же так? Образ приближенного к царской семье серого кардинала, к которому ежедневно выстраивается очередь просящих и поклоняющихся, как-то не вяжется с пропойцей, нарисованным Журавлевой.

На службу в Отдельный корпус жандармов Иван Юлианович Попель поступил в 1906 году, но лишь в октябре 1911-го, приобретя опыт оперативной работы, перевелся в Санкт-Петербургское губернское жандармское управление. Кстати, будучи ротмистром в Вологодском ГЖУ в 1911 году, Попель через свою агентуру занимался в том числе наружным наблюдением за И.В. Сталиным. Дело 1911 года на «крестьянина Тифлисской губернии И.В. Джугашвили по кличке Кавказец» хранится в том же Государственном архиве РФ (ГА РФ), что и дело об убийстве Григория Распутина. Возможно, именно дело Джугашвили помогло Попелю продвинуться по социальной лестнице и перевестись в Петроград, чтобы потом получить возможность проявить себя в деле об исчезновении Распутина.

Обитатели дома на Гороховой мечтали избавиться от такого жильца, как Распутин. Нескончаемая цепочка просителей превращала приличный дом в проходной двор.

Иван Юлианович накопил серьезный опыт, благодаря которому сразу мог определить, насколько ценны те или иные агентурные или свидетельские показания, можно ли им безоговорочно верить. Показания Журавлевой противоречили информации, полученной от домочадцев Распутина. Григорий Ефимович уходил в баню через черный ход, вполне логично было бы задать швейцарихе вопрос: как она почуяла запах алкоголя, ведь швейцар стоит у парадной двери. Совершенно очевидно, что Журавлева судила по человеку со своей колокольни, списав странное поведение Распутина на алкогольное опьянение.

Вообще, обитатели дома 64 на Гороховой мечтали избавиться от такого жильца, как Распутин. У него ежедневно бывало множество людей, и эта нескончаемая цепочка просителей превращала приличный дом в проходной двор. Поэтому соседи писали доносы в полицию на непристойное поведение Григория Ефимовича, который сделал из квартиры «вертеп», и не гнушались привлекать СМИ, чтобы разобраться с неудобным соседом. Для них исчезновение Распутина стало решением серьезной проблемы. Попель это прекрасно понимал.

Ваша оценка очень важна

0
Шрифт
Фон

Помогите Вашим друзьям узнать о библиотеке

Скачать книгу

Если нет возможности читать онлайн, скачайте книгу файлом для электронной книжки и читайте офлайн.

fb2.zip txt txt.zip rtf.zip a4.pdf a6.pdf mobi.prc epub ios.epub fb3

Похожие книги

БЛАТНОЙ
18.4К 188

Популярные книги автора