Римма Байбурова - Эпоха Просвещения. Разочарование. Поиски. Интерьеры Нового времени. Часть 2 стр 3.

Книгу можно купить на ЛитРес.
Всего за 149 руб. Купить полную версию
Шрифт
Фон

Общественный (apartement de société) апартамент для сбора семьи и приема близких друзей. В нем бывают зал для балов (de bal), для концертов (de concert), для праздников (de festin), для гостей (de companie) и др. Обеденная зала (á manger) расположена в стороне, чтобы приготовления к застольям не препятствовали движению по главной анфиладе.

Парадный и общественный апартаменты устраиваются по разные стороны салона, но сам салон входит в каждый апартамент. В случае праздника они объединяются в единый ансамбль.

Жилой (apartement de commodité) апартамент располагают в отдельном жилом этаже, так как в жилой части дома должно быть тихо и покойно. Комнаты в нем менее просторные и хорошо отапливаемые. Они по-разному компонуются в группы, предназначенные для членов семьи. Сквозь весь этаж часто проходит длинный коридор, обеспечивающий изолированность групп.

Между этажами, как и в Италии, устроены антресоли, подняться в которые можно по специальной лестнице. Как они организованы, не ясно.

Антресоль (франц. entresol)  полуэтаж, встроенный в объем основного этажа.

Служебные и хозяйственные помещения устраивались вне этого главного ядра дома.

Рассмотренная схема отеля оставалась популярной до конца XVIII в. (ил. 4).


Ил. 4. Отель де Bourbon-Condé. Арх. A.-T. Броньяр. 1782(?) г.


Наряду с этим, появляется новый тип дома. Он меньшего размера, его объем тяготеет к кубу, а план часто утрачивает симметричный характер (ил. 5).


Ил. 5. Отель Гимар. Арх. К.-Н. Леду. Между 1770 и 1773 гг.

1. Фасад. 2. План нижнего этажа. 3. План верхнего этажа с театром над входом


Б о г а т ы й   р у с с к и й   д о м   к л а с с и ц и з м а

В русских дворцах и домах дворцового типа при построении интерьеров  по-прежнему господствовала симметричная пространственная композиция. Однако в богатых жилых домах классицизма пространственное решение интерьеров получило свои особенности.

К нач. 1760-х гг. русские богатые жилые дома имели чаще три этажа. Парадные комнаты с главным залом в центре и обращенными к нему анфиладами обычно располагались во втором этаже. Выше (но частично и во втором этаже) устраивались анфилады жилых покоев. Для служебной части по традиции отводился нижний этаж.

В классицизме на структуру интерьера воздействовали два главных фактора. Во-первых, завоевавшее Европу commodité, ставшее, наконец, актуальным в России к моменту появления классицизма. Стремление к удобству затронуло в первую очередь жилой этаж дома с традиционно проходными комнатами. Здесь появляется коридор, связанный дверными проемами с помещениями в жилых анфиладах. В результате, перекрывая те или иные анфиладные двери, можно было формировать отдельные жилые «половины» (в России их станут называть также жилыми апартаментами) из одной, двух, трех комнат. Новая коридорно-апартаментная система позволяла не только создавать в жилом этаже изолированные апартаменты, но при необходимости их трансформировать (ил. 6).


Ил. 6. Жилой этаж с коридором.

План жилого этажа в доме Собакина на Кузнецком мосту в Москве. После 1762 г.


Дальнейшее стремление к удобству приведет к расширению жилой части за счет уменьшения парадной.

Второй фактор художественный. В результате его воздействия изначально симметричная и адекватная требованиям классицизма структура парадной части оказалась разрушенной. Произошло это так. Как  отмечалось ранее, Россия, которая в 1-й пол. XVIII в. стремительно постигала опыт европейских стран, шагнула в классицизм, почти минуя стиль рококо, прямо из барокко. Обычно на новшества в интерьере первой отзывается система его декорации, в то время как собственно структурные нововведения происходят по мере более глубинного «вживания» в стиль. Так и случилось  с богатыми жилыми домами. В них относительно легко внедрилась новая классицистическая декорация (см. далее), но происходившие параллельно структурные преобразования все еще являлись своеобразным откликом на стилистические установки предшествовавшего барокко. Владельцы богатых жилых домов по-прежнему оставались в плену барочных безграничных дворцовых анфилад и жаждали привнести в свои дома аналогичные пространственные эффекты. Но, поскольку жилой дом невозможно было «бесконечно» увеличивать, желанного эффекта добивались иными способами. Например, располагали на парадной анфиладной оси окно, которое «выводило» внутреннее пространство в наружную безбрежность. Но еще более интересный эффект возникал, когда на анфиладной оси устанавливали большое зеркало,  в нем поистине безгранично множились нанизанные на анфиладную ось помещения.

Однако зал в центре оказывался своего рода центростремительным фокусом обращенных к нему помещений, а это противоречило бесконечности внутреннего пространства. И тогда для протяженной парадной анфилады освобождают весь передний фронт дома; зал по-прежнему в центре, но отодвинут, прилегает к дворовой стороне дома (ил. 7).


Ил. 7. Зал в центре, но перенесен к дворовому фасаду.

Усадебный дом в Кусково под Москвой. Под рук. Карла Бланка, использованы чертежи французского архитектора Шарля де Вайи. 17691775 гг.

1. Вид со стороны пруда. 2. План

1 карточная; 2 кабинет-«канторка»; 3 личная уборная; 4 библиотека; 5 диванная; 6 вседневная опочивальня; 7 картинная; 8 портретная; 9 прихожая-гостиная графа; 10 спальня графа; 11 музыкальная гостиная; 12 прихожая, «что из саду»


В такой композиции зал оказался как будто независимым от главной анфилады, но, оценив в парадной анфиладе пространственные эффекты дома «без границ», посетители вынуждены были «пробираться» к нему через ряд боковых помещений.

Однако очень скоро зал, самое важное парадное помещение, вновь возвращается в цепочку важнейших парадных комнат, но Но возвращается в качестве  заключительного звена главной анфилады,  его располагают у торца дома (ил. 8).


Ил. 8. Зал в торце.

План второго этажа в доме Дурасовой на Покровском бульваре. Кон. XVIII в.

1. План. 2. Разрез


При этом классицистическая симметрия внутреннего пространства оказалась полностью разрушенной. Но именно такой вариант интерьера станет самым популярным в русских дворянских домах. Заметим, что фасадное решение оставалось симметричным.

В то же время по законам классицизма симметричным должно быть каждое отдельное звено анфиладного ряда. В рассматриваемом примере (ил. 8) в зале мощный симметричный эффект создается благодаря  хорам для музыкантов, устроенным в торцевой стене. В гостиной с пятью окнами по главному фасаду центр на противоположной окнам стене зафиксирован камином, к тому же ось симметрии усилили симметричные в углах печи.

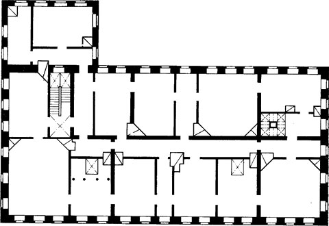
После возвращения зала в главную парадную цепочку на его месте со стороны дворового фасада немедленно появились жилые комнаты, число которых под воздействием commodité постоянно увеличивалось. Вместе с ними здесь появляется коридор (ил. 9).


Ил. 9. Жилые комнаты с коридором во 2 этаже.

План среднего этажа в доме Козицкой на Тверской. Начало строительства 1791 г.


Устройство жилых комнат по соседству с парадными оказалось весьма перспективным. Поскольку жилые комнаты меньше и ниже парадных (см. далее), над жилым блоком стали размещать дополнительные жилые помещения с небольшими окнами, обращенными на дворовый фасад. В России этот дополнительный невысокий жилой этаж получил название «антресоли». Лестницу, ведущую в антресоли, сооружали в коридоре, разделяющем парадные и жилые комнаты. Как в Италии и во Франции, русские антресоли вписаны в объем дома, но на Западе это помещения между разновысоким главным и жилым этажами, в то время как в России это дополнительный этаж над жилыми комнатами, расположенными в главном этаже. Русские антресоли оказываются отлично изолированными, в них рекомендовалось размещать «детские».

Ваша оценка очень важна

0
Шрифт
Фон

Помогите Вашим друзьям узнать о библиотеке

Скачать книгу

Если нет возможности читать онлайн, скачайте книгу файлом для электронной книжки и читайте офлайн.

fb2.zip txt txt.zip rtf.zip a4.pdf a6.pdf mobi.prc epub ios.epub fb3